手机扫码
当前位置:
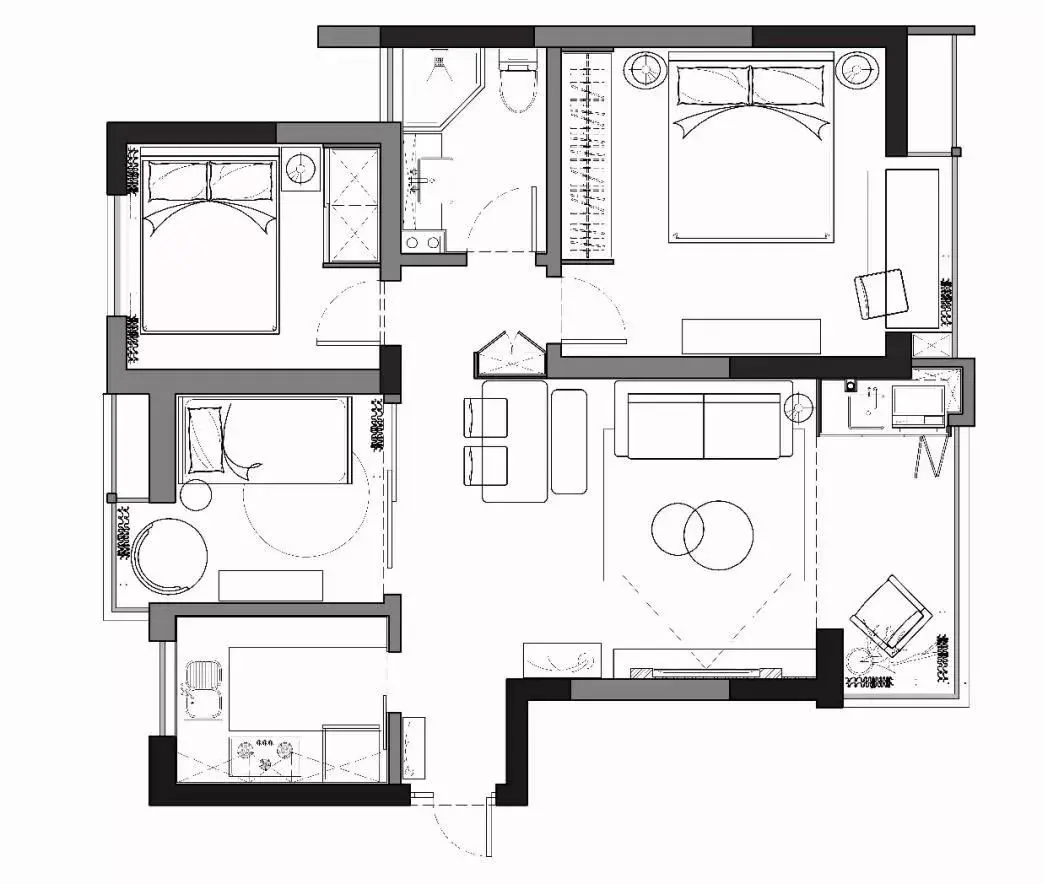
首页 > 装修常识 > 78㎡老房翻新 改出三室两厅 装修前后对比惊呆众人!
浏览数:267次
发布时间: 2021-09-02
今天,小编分享的案例是杭州78㎡旧房翻新,改造前后对比惊人,老破小逆袭成豪华美居。
经典案例
面积:78㎡
坐标:杭州
户型:三居室
亮点:老房翻新,客厅隔出儿童房,实现两房变三房!


原户型两房一厅的格局,无法满足三代人居住需求,且入户门正对卫生间,空间布局不大合理。

设计师在原有的客厅中隔出儿童房,两室变三室。将阳台纳入客厅,增加自然采光。
改造前




房屋位于一层,装修老气,储物空间不足,给人一种杂乱拥挤的感觉。且采光差,空间昏暗。
玄关


玄关设计简单,浅灰色墙面搭配木纹地板,质感温润。小羊造型的换鞋凳,给空间增添了活泼感。
客厅


将阳台纳入客厅,采用落地窗设计,空间宽敞明亮。红色的电视墙很抢眼,为素雅的空间增添了几分活力。

阳台的一侧打造成洗衣房,设计折叠门隐藏,增加整体的美观性。

阳台另一侧打造成休闲区,一把摇椅、几盆绿植,加上简易桌几与藤编收纳,内景与外景的完美结合,惬意十足。
厨房


厨房延续整体的风格,以白色作为主色调,提升空间的亮度。回字纹花砖精致活泼,白色橱柜搭配金色把手,简约时尚。
餐厅


原木餐桌椅质感温润,粉色吊灯点缀空间,用餐氛围更加温馨。
主卧


主卧设计简单,浅灰色墙面、木纹地板,搭配象牙白家具,营造舒适轻松睡眠氛围。
儿童房


儿童房是从原有的客厅空间隔出来的,采用玻璃门隔断,采光充足。

儿童房面积不大,整体灰白搭配,加上金粉色饰品点缀,简约可爱不失少女心。
次卧


次卧整体设计简洁素雅,没有复杂的造型和多余的装饰,回归睡眠本质。

浅色调的设计清新淡雅,床尾放置穿衣镜,方便平时整理着装。
卫生间


卫生间面积不大,但功能齐全。深灰色防滑地砖搭配白色小方砖,拉伸出空间层次感。
声明:该文章来源互联网,由乐后屋装企精灵整理发布或转载,如有侵权请及时联系平台客服进行删除,版权归原作者所有,本处仅作为分享使用。
算一算我家装修多少钱? 5秒免费获取装修报价
扫码获取
微信扫描二维码关注

