手机扫码
当前位置:
首页 > 装修常识 > 40平loft小户型公寓现代极简风,黑白灰的设计格调满满!
浏览数:60次
发布时间: 2023-05-10
现在的年轻人越来越喜欢loft户型,loft虽然面积不大,但跃层的设计,创意又有个性,还能住出别墅的感觉。
今天齐家小编给大家分享的这套单层面积40㎡的loft,简洁的黑白灰风格,还有充足合理的储物空间。在软装上,选用轻巧通透的家具,采用经典黑白灰色,打造出一个集颜值与实力为一体的家。
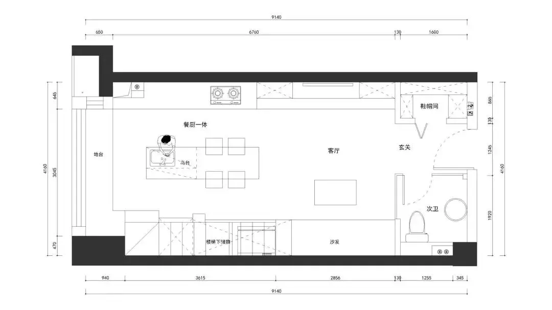
为了保障整个空间的通透性,功能区之间没有用隔断分离,采用黑白色的变化区分开各个区域,简单色彩+高整合度布局,让人第一眼就感觉宽敞大气。
也为了弱化储物柜侧立面的厚重感,将沙发区设计成一个半包围盒子的样式,直接与储物柜连成一体。简单的的小沙发搭配创意茶几,不拥挤还很前卫。
电视背景墙是一片纯净的黑色,没有做多余的装饰,搭配白色的一体化电视柜和橱柜。为了保持空间整洁,所有柜子都没装拉手,整体看上去也是高级感满满。
电视墙的左侧就是餐厨区。厨房餐桌采用多元化设计,既是餐桌也是岛台,同时还兼备吧台的功能。
厨房地柜+吊柜提供超强收纳功能,将烤箱、冰箱完美嵌入橱柜,锅碗瓢盆油盐酱醋也能统统藏进去,让空间干净又整洁。
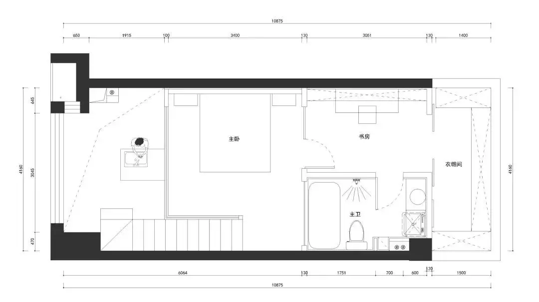
令人羡慕的超大的落地窗,大理石面的飘窗可以坐上去,在每个宁静的夜晚看外面灯火璀璨,甚是惬意。
一楼卫生间面积比较小,只有马桶+洗手台的位置,虽然简单但是功能足够就可以了。
楼梯沿用了整体的极简风格,用黑白相间的瓷砖做踏步,透明的玻璃扶手也是为了增加通透性。
卧室部分为玻璃墙,提升卧室采光效果,黑白相间的背景墙富有层次感,床特别定制了靠背和床头柜一体的款式,这样整体的视觉效果更统一。上方摆放了一张装饰画来提升卧室的颜值。
书房紧挨着卧室,通高的黑色书架大气十足,全开放式的书格方便拿取。
主卫选用整体台盆,脏衣篓和收纳盒可以直接放在下方,旁边是洗衣机和干衣机,精致单身贵族的居家必备良品。
二楼属于私人空间,也不需要做过多的防护,大量采用玻璃墙隔断,保持了整个空间的通透感。躺在浴缸里,可以通过两层玻璃直接看到窗外的景色。
声明:该文章来源互联网,由乐后屋装企精灵整理发布或转载,如有侵权请及时联系平台客服进行删除,版权归原作者所有,本处仅作为分享使用。
算一算我家装修多少钱? 5秒免费获取装修报价
扫码获取
微信扫描二维码关注

