欢迎您访问乐后屋装企精灵官网!

手机扫码

400-672-2009

优秀!20平loft小户型公寓,巧妙的布局设计,让小家温馨有格调!

浏览数:72次

/

发布时间: 2023-06-09

每个女生都有一个单身公寓的梦,爱自由的空间,想要拥有一个属于自己的小窝,不被打扰,静静的发呆。房子不要太大,但一定要装修得精致一些;各种颜色和家具的搭配,非常的优雅与精致!



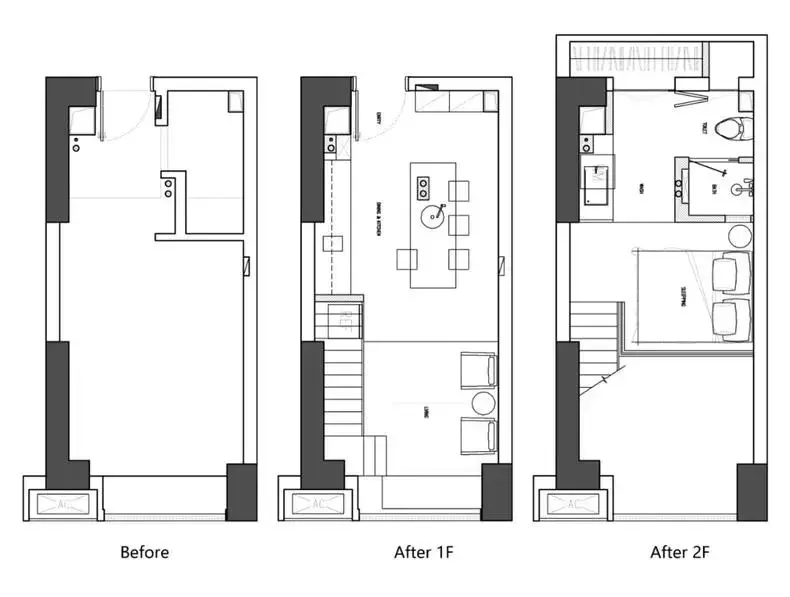
今天小编要给大家分享的是一间20㎡迷你小户型loft公寓装修案例,设计师将每个空间完美布局,设计得合理又精致,充满美感的同时收纳并不受影响,简直太神奇了!



玄关设计特别简单,靠墙设置了一个玄关矮柜,利用壁灯、悬挂镜子作为装饰,玄关柜台面作为装饰同时也可以收纳小物件。

玄关矮柜底部悬空可以放置平时常的鞋,穿衣镜的设计方便进出时整理仪容的同时还起到视觉延伸的效果。


玄关右转就是餐厨厅,两侧夹道设计,让小空间里也能充分发挥作用。一侧是厨房,一侧是吧台,作为餐厅使用,二者相互弥补,形成简约灵巧的厨餐厅组合,搭配以原木风为主,质感且温馨。



在吧台设计了小水槽,下方的橱柜可以存放杂物,作为储物空间使用。



厨房虽小,但一体化的设计,干净利落,将收纳最大化。



客厅将阳台飘窗充分利用起来,打造休闲沙发,节省了不少空间;即使不追剧,作为一个简单的休闲区也是非常棒的设计。主空间设置了两个座椅,增加实用性。



小台阶设计,提高仪式感,凸显飘窗沙发的主位置,让客厅更加美观。



挑高的客厅设计,亚麻灰的窗帘从二层直接垂下,空间也仿佛随着窗帘一起轻盈惬意起来。



loft的楼梯当然不能浪费啦!电视机采用内嵌设计,可以收纳也能装饰,整体以原木风和藤编设计为主,打造自然休闲的淳朴氛围。


楼梯上来就是卧室区域,利用玻璃做隔断,增加安全感也不会阻隔光线,让卧室更加通透自然。



素浅色彩的搭配,让空间更加安静舒适。卧室面积小,利用小茶几代替床头柜,精致又可爱;再搭配一盏复古吊灯,更显韵味。



卫生间的设计极具风韵,以中式风格隔断为主,增加质感与格调,干湿分离的设计让生活更加方便。



卫生间内部利用玻璃隔断做了干湿分离,增加了采光又能保证隐私,十分人性化的设计。


声明:该文章来源互联网,由乐后屋装企精灵整理发布或转载,如有侵权请及时联系平台客服进行删除,版权归原作者所有,本处仅作为分享使用。

乐后屋装企精灵官方网站   技术支持 : 乐后屋装企精灵

算一算我家装修多少钱? 5秒免费获取装修报价

扫码获取

预约量房

扫码即可获取

预约设计

扫码即可获取

免费报价

扫码即可获取

预约看工地

扫码即可获取

微信扫描二维码关注

立即打开微信扫一扫