欢迎您访问乐后屋装企精灵官网!

手机扫码

400-672-2009

35平时尚小户型loft公寓,设计简约却不简单,让家更宽敞大气!

浏览数:116次

/

发布时间: 2023-06-12

在房价飙升的大城市,买一个小loft几乎是白领群体最流行的购房方式了。麻雀虽小,五脏俱全,小公寓也有无限可能。不要轻易说不可能,还是那句老话:只有想不到,没有做不到。



今天齐家小编要分享的是一间35㎡小户型loft公寓装修,室内整体采光还不错,5米的层高设计起来得心应手,一切都恰到好处,居然还有衣帽间,简直是绝了!下面一起来看看吧!



玄关空间很大,靠墙设计的换鞋凳,加上穿衣镜,打造简洁实用的玄关。


穿衣镜打造成壁挂式圆形设计,下方打造成收纳柜,可以摆放和收纳,别具一格。


公寓整体装修颜色以白色为主,主打极简风。极具极简风格的家居,展现得干净利落,线条优美而有质感,打造更有品位格调的一面。


厨房采用木质厨柜与砖石相搭的设计,四周以文化墙作为主调,加上极具设计性的吊灯,打造设计的层次感与艺术性


餐厅精致小巧,充满美感,简约餐桌餐椅搭配白色风格,与整体设计合二为一,提高了整体设计的美感与统一感。


卫生间采用玻璃隔断做了干湿分离,工业风与现代简约风的融合,硬朗而不失细腻,灯筒设计增加光线,加上玻璃隔断,增加亮度的同时又展现设计的质感。


冷灰色通过灯带展现出暖暖的温馨感,不会过于硬冷,反而衬托出暖意。


楼梯的设计弧线优美,独立踏板精致而实用,利用花岗岩进行点缀,展现不同的美感。


二楼就是卧室,利用木地板缓解清冷的感觉,加上窗帘,增加安全感,保护隐私。


另一侧是打造出的额超大衣帽间,玻璃磨砂质感更为典雅,而且不会遮挡光线,让整个空间都通透舒适。

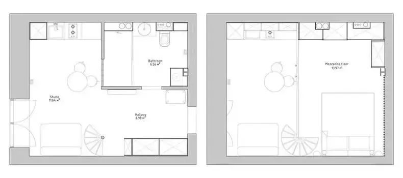
△平面图


△轴测图

声明:该文章来源互联网,由乐后屋装企精灵整理发布或转载,如有侵权请及时联系平台客服进行删除,版权归原作者所有,本处仅作为分享使用。

乐后屋装企精灵官方网站   技术支持 : 乐后屋装企精灵

算一算我家装修多少钱? 5秒免费获取装修报价

扫码获取

预约量房

扫码即可获取

预约设计

扫码即可获取

免费报价

扫码即可获取

预约看工地

扫码即可获取

微信扫描二维码关注

立即打开微信扫一扫