欢迎您访问乐后屋装企精灵官网!

手机扫码

400-672-2009

装修案例分享,95㎡极简现代风,开放式衣帽间+明亮书房空间

浏览数:1415次

/

发布时间: 2023-09-09

筑面积95平,原户型是三室两厅的格局。下面就和小编一起来看看吧,希望大家喜欢~

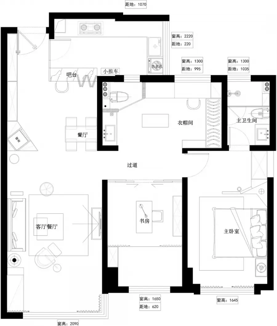
▲ 平面布置图
▲ 玄关处打造一体化的定制柜体来满足玄关以及公共区域的收纳,一个人生活也要干净整洁,地面通过瓷砖和木地板的拼接做简单分区。

▲ 考虑到入户直对客厅,将餐厅和客厅之间以三角造型做区分,通过柜子做隔断,也刚好可以把冰箱嵌入柜体。
▲ 客厅的整体配色以黑白灰为基调,简单的配色往往是很经典的搭配方式,简约的设计反而能够凸显空间的质感。
▲ 浅灰色的矮凳和单人沙发搭配墨蓝色的三人位沙发,沙发选用科技布材质,兼具真皮的外观和布艺的透气性。
▲ 电视柜没有繁复的设计,线条利落且整洁好打理, 背景墙面铺贴灰色艺术墙布,弧形门洞的设计增加艺术气息,角落一株千年木搭配水泥盆,颇具现代感。
▲ 客厅望向餐厨视角
▲ 在厨房与餐厅之间增加吧台设计,拉开窗厨房为半开放式,合上窗则可以预防厨房油烟扩散,墙面用黑色线条壁灯作装饰。
▲ 厨房的门和窗都选择黑色窄边框的透明玻璃,墙面以浅色为主,地柜用深色,既能凸显层次感又不会太过压抑。
▲ 书房,灰色与木色的基调中搭配蓝色窗帘,给人一种中性的沉稳与宁静,黑色书桌搭配简约的书架,飘窗台也可以作为一个简单的阅读区,家具都是成品的,日后想改卧室也很方便。
▲ 书房拆除靠近走廊的墙体改为超大长虹玻璃门,并采用吊轨设计,地面没有轨道不仅美观,而且地面打扫也更方便。
▲ 衣帽间也大胆拆除一侧墙体改为开放式衣帽间,一侧是客卫,干湿分离的设计,使用起来更加方便,(长虹玻璃门里面是客用马桶,一般不常用)。
▲ 开放式的衣帽间做定制柜体来满足收纳储物需求,衣柜做透明开门,内设感应灯,现代又高级。
▲ 主卧,床头背景墙选择蓝色的乳胶漆,增加层次感不至于太单调,同时蓝色也更利于睡眠氛围,金属质感的简约吊灯,适合男生的硬朗气质。
▲ 主卧进门处做定制的端景柜,用长虹玻璃来分割睡眠区和主卫。
▲ 主卫,以灰色和黑白为主,干净整洁好打理。

声明:该文章来源互联网,由乐后屋装企精灵整理发布或转载,如有侵权请及时联系平台客服进行删除,版权归原作者所有,本处仅作为分享使用。

乐后屋装企精灵官方网站   技术支持 : 乐后屋装企精灵

算一算我家装修多少钱? 5秒免费获取装修报价

扫码获取

预约量房

扫码即可获取

预约设计

扫码即可获取

免费报价

扫码即可获取

预约看工地

扫码即可获取

微信扫描二维码关注

立即打开微信扫一扫