欢迎您访问乐后屋装企精灵官网!

手机扫码

400-672-2009

【法式复古风设计案例】73㎡小户型,秒变法式风,欢迎收看我的温馨复古家!!

浏览数:116次

/

发布时间: 2024-01-04

今天给大家带来一套73㎡法式风小家,异域感扑面而来!



这个小房子和北京大多数出租房一样:采光暗、地板墙面老旧、厨房卫生间永远带着一股低配的廉价装修感且格局不合理……


▲改造前户型图

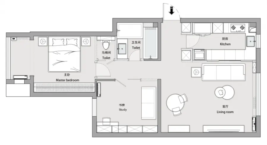
▲改造后平面布置图


|  玄关  |
玄关过道很窄,几乎没有地方放置玄关柜,最后将厨房的长度缩短,用缩短空间的面积做个定制柜子,来满足日常出入收纳的需求。玄关、走廊和客餐厅三个连续的空间半墙都刷复古绿色,让视觉可以产生延伸感。

|  客厅  |

墙面和天花勾勒简约的石膏线造型,搭配人字拼胡桃木色木地板,把法式风情体现得淋漓尽致。

大面积玻璃取代一部分厨房实墙,减少厨房的幽暗感,增加厨房的光照。
窗台下面打造定制柜,一来遮挡老旧的暖气管,沙发旁边的壁龛作茶几的补充收纳,延伸出的柜体可全部用来收纳,而且在无形之中加宽窗台台面,使平淡无奇的窗台变成一个小吧台。
得天独厚的优势是客厅窗景,即使不出门,也能体会到外在环境的变化。

|  厨房  |
厨房空间用透明玻璃墙取代实墙,创造出穿透度十足的流畅视线。
壁面和地面的设计颇为用心,地面延用走廊的黑白方砖,让两个空间能彼此呼应。
橱柜是哑光浅蓝色,市面上比较少见,需要特别定制。五金方面,所有的柜门把手都是用心挑选过的,造型轻巧,透亮的银质,呈现出精致感。


|  过道  |

客厅和走廊的地砖很特别,采用黑白方砖拼贴而成,强调怀旧复古的氛围,这种拼法也塑造出一种无边无际的视觉效果,让空间具有延伸放大感。


|  书房  |

书房采用双开门营造出大器的空间感,深木纹色和金属把手搭配在一起,以层层细节上的美学营造独有复古风。
书房靠墙一侧是成品书桌和定制的书柜,柜体安装后封顶贴石膏线,不留分毫卫生死角,同时渲染一片优雅宁静。


|  主卧  |
关于主卧的规划,风格上与公共区域保持一致,半墙粉刷绿色乳胶漆,有效缓和了阳台梁柱的压迫。


|  卫生间  |
在整体面积没有改变的情况下实现干湿分离。湿区分为洗手区和两个淋浴区,墙面全部用浅青色釉面砖,让卫生间配色不显压迫。
浴室柜对面设计了浴缸,让屋主有一个泡澡放松之处。壁挂马桶后方是一面磁吸墙,所有铁件物品都可以吸附在墙上,完全不占台面空间。

声明:该文章来源互联网,由乐后屋装企精灵整理发布或转载,如有侵权请及时联系平台客服进行删除,版权归原作者所有,本处仅作为分享使用。

乐后屋装企精灵官方网站   技术支持 : 乐后屋装企精灵

算一算我家装修多少钱? 5秒免费获取装修报价

扫码获取

预约量房

扫码即可获取

预约设计

扫码即可获取

免费报价

扫码即可获取

预约看工地

扫码即可获取

微信扫描二维码关注

立即打开微信扫一扫