手机扫码
当前位置:
首页 > 装修常识 > 170㎡优雅中古混搭质感大平层,把美拉德配色自带的醇厚与浪漫留在家中~
浏览数:244次
发布时间: 2024-01-20
▲ 项目面积170平,本案屋主是设计师曾经客户的同事,虽然与之前项目户型一致,生活状态,美食、阅读、舞蹈、宠物方面也相同,但审美却截然不同,在和他们的对话中感受到对生活真切的憧憬,对于家,他们认为美是必须的,同时希望温度、诗意伴随其中,几次沟通后,设计师从中提炼出“温度、包裹、质感”为关键词,结合屋主生活习惯,最终呈现了这个与众不同的中古家
▲ 原始结构图
原户型缺点:
1、进门动区面积过大;
2、书房入口位置占据起居厅实用面积;
3、主卧无法满足多种复合型功能的规划;
4、厨房面积过小,无法满中西厨布局。
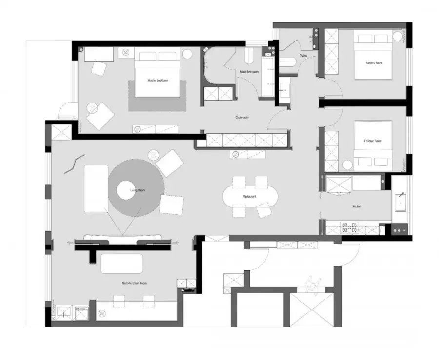
▲ 平面布置图
解决方法:
1、餐厅新建墙体,既营造入户仪式感,主卧还增加了步入式衣帽间;
2、调整书房面积,有效让出西厨操作空间和餐厅结合成社交厨房;
3、改变起居厅对面房间进门位置,形成复合型空间,划分独立的区域感;
4、全房采用分散式收纳概念,实现随手即收纳的目的。
▲ 全屋通刷奶油色艺术漆,自带特有复古感,通过拆改窗台样式,最大限度地延伸光进入空间的维度
▲ 两把中古单椅置于空间,氛围感油然而生
▲ 选择河马沙发搭配野口勇茶几,颜值与实用性完美结合,左侧在原本阳台管道处设置收纳柜,猫猫的日常用品都可以放置在内,下方还专门留了猫洞,趣味性满满
▲ 造型别致的包豪斯落地灯,白天可以当作家里的艺术摆件,晚上营造惬意氛围
▲ 书房做双入口设计(平面图可见),形成洄游动线,沿墙定制加长书桌,满足两人同时办公看书
▲ 立面增设隔板和吊柜,书籍、摆件、杂物都有了安置之处
▲ 书桌小景
▲ 折叠摇臂灯可以调节照明方向,非常实用
▲ 书房看向客餐厅视角
▲ 餐厅,天然洞石餐桌搭配中古餐椅,上方点缀一盏玻璃球吊灯,格调满满
▲ 复古餐边柜给餐厅增添了一份高贵典雅的氛围
▲ 背景点缀一幅肌理感装饰画
▲ 厨房在玻璃门的映衬下,若隐若现的将生活气息传达至餐厅,让家人能够随时看到彼此
▲ 从餐厅进入卧室区的房门选择了特定的款式,为进入休憩空间提供与众不同的仪式感,同时由于门框的改变,也能潜移默化的将公共空间与私人空间区分开,给予屋主想要的隐私感和安全感
▲ 次卧,衣柜靠近床头部分留空,延伸出悬空床头柜
▲ 暖光月球壁灯营造温馨氛围
▲ 次卫改造后将干区外置,实现干湿分离,设计一体式台盆不留卫生死角
▲ 主卧,一物一器都是适宜居者的安逸铺陈,多元素组合混搭让整个空间显得格外温馨舒适
▲ 挂墙置物架具备梳妆台功能,还能自由调节高度,灵活实用
▲ 另一边布置休闲角落
▲ 拱形门洞后是衣帽间和主卫
▲ 由于将原本公共空间划进主卧,在进入主卧前就有了一条专属过道,在过道左侧设置了一整排衣帽柜,释放客厅收纳的同时也让屋主有了堆放衣物的区域
声明:该文章来源互联网,由乐后屋装企精灵整理发布或转载,如有侵权请及时联系平台客服进行删除,版权归原作者所有,本处仅作为分享使用。
算一算我家装修多少钱? 5秒免费获取装修报价
扫码获取
微信扫描二维码关注

