手机扫码
当前位置:
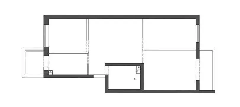
首页 > 装修常识 > 【极简风设计案例】80㎡纯白极简风两居,一抹爱马仕橙点亮整个空间,满屏高级感!
浏览数:301次
发布时间: 2024-04-01


玄关
原始户型进门见厅,利用玄关柜进行空间分隔。玄关柜局部镂空设计,巧妙增加空间通透性,爱马仕橙穿插在柜体模块间又起到了隔而不断作用,让整个玄关充满了设计感和艺术感。

以玄关柜为中心动线环绕,柔和划分各个空间,避免直接的视觉突兀,也增加了空间互动趣味性。

客厅

靠客厅主/次卧原始墙面拆除,内推600mm新建墙体,扩充客厅面积,门洞采用隐形门设计,保证墙面的完整、统一性。

办公区
靠窗定制一字型悬浮书桌,满足两人的办公、阅读需求,转角增加地柜+吊柜组合设计,既可以作为餐边柜也可以作为书柜,一举两得。角落的暖气管道没有刻意隐藏,而是涂刷了同色的爱马仕橙,为空间增加一些呼应颜色。

香格里拉帘保证隐私安全可调节光影,柔和的光线给人朦胧的美感,阳光过滤光影点缀房间,恬静唯美、置身其中。
厨房
将厨房小阳台打通纳入其中,L型操作台面满足烹饪需求,冰箱与柜体颜色保持统一,开放式厨房视觉上更加通透显大。


餐厅
岛台+餐桌设计,减轻空间负担,岛台可以扩充作为厨房操作区,分担厨房烹饪压力;原木餐桌充满温暖自然质感,上方飞碟吊灯打破空间沉闷,增加就餐趣味性。

卧室
主卧没有过分追求设计,白色+木色给予空间自然、宁静的氛围;木材自带的自然肌理为业主营造舒适且自由的就寝空间。

卧室一侧打造通顶衣柜,悬浮梳妆台穿插于衣柜之中,一体式设计节省空间且增强实用性。

儿童房
次卧空间较小,我们设计了半包式榻榻米+一字型书桌。踏步设计+半围合式榻榻米睡觉更有仪式感和安全感。

卫生间
卫生间干湿分离设计,浴室柜延伸至马桶上方,增加卫生间储物空间。

声明:该文章来源互联网,由乐后屋装企精灵整理发布或转载,如有侵权请及时联系平台客服进行删除,版权归原作者所有,本处仅作为分享使用。
算一算我家装修多少钱? 5秒免费获取装修报价
扫码获取
微信扫描二维码关注

