手机扫码
当前位置:
首页 > 装修常识 > 【现代风设计案例】162㎡现代风横厅大平层,实现了质朴、舒适、松弛的理想居所~
浏览数:227次
发布时间: 2024-04-24
▲ 项目面积162平,这是一个90后建筑从业者的家,简单、有序、独立,由于工作的原因,屋主日常加班的情况较多,在家的时间比较少,回家后,她大部分时间会待在书房的电脑前,这已成为她的一种生活习惯,她喜爱包豪斯风格,所以除了满足家的审美需求外,她将家的重点落在了整洁、易清理,目光所及没有胡乱堆放的杂物,希望即便独处在家,也能感受到温情和归属感
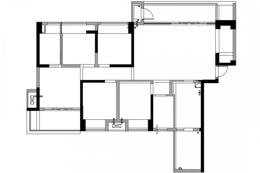
▲ 原始结构图
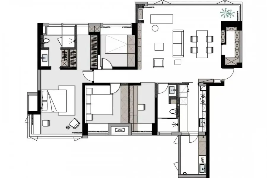
▲ 平面布置图
▲ 入户以深色木饰面覆盖,从深邃的入户到明亮的室内空间,让屋主从工作状态转换到归家的轻松状态,起到不同场景的心理情绪变化,黑色木饰面墙体一侧,有一扇同材质制作的隐形门,包裹着公共区域的储物间,白色公共空间出现黑色突出的体块感
▲ 左侧设置块面化白色鞋柜,极简、悬浮,如包豪斯特有的简洁干练的结构,也与整体纯粹的空间氛围相吻合,在空间里突出鞋柜的瞩目感
▲ 客厅是大横厅布局,超长的阳台为室内提供充足的采光,以大面积玻璃窗让光线自外而内延展,让自然光、风能够自由穿梭,营造一个明媚舒适的生活场
▲ 整个公共区域同样看不到除家具陈设以外的物品,让空间保持最佳的整洁清爽状态
▲ 悬浮电视柜不止是对于造型的追求,悬浮的状态让柜体与客厅视线感轻盈简洁,并且同样拥有着大量的储物需求,巴士门的开合方式,房柜门平整光滑,没有突儿感
▲ 阳台角落设计的展示收纳柜,考虑到日后屋主的清洁量,并没有设计成开放柜,玻璃门板的展示效果也更好
▲ 最具知名度的瓦西里椅,用管状钢和织物将立方体的框架构筑起来,它是包豪斯设计的象征和经典现代主义的代表,不仅实现了功能,更如艺术品般点亮空间
▲ 选择可灵活布局的单椅和边几,极简现代的结构,与整体协调统一
▲ 客厅后方的餐厅与客厅形成黑白色的对立面,将空间主次分割开来,增加空间的层次感和穿透感,视觉上也多了令人玩味之处
▲ 餐厅同样采用极简的设计手法,钢骨架的餐桌结构,在表面覆盖浅色的岩板
▲ 克莱因蓝的亚克力餐椅,成为空间的点睛色彩,为冷静的空间注入灵魂,兼顾空间的艺术性与功能性
▲ 走廊一侧包含室内门,统一为纯净的白色,让整体的视觉感更加和谐
▲ 点缀的装饰画,体块、线条的运用,通过设计从左到右依次将厨房、次卫、书房门隐藏其中
▲ 厨房延续房间的黑白双色调性,Ⅱ型的橱柜布局提供了大量的储物和操作空间,嵌入的冰箱、烤箱与洗碗机让整体立面保持平整洁净,获得舒适的视觉感官,日常也更清理方便
▲ 厨房往里走连接生活阳台
▲ 和厨房的推拉门不同,次卫做的开门设计
▲ 次卫同样延续黑白色调,依次布局洗漱区、马桶区和淋浴区
▲ 书房同样设计的推拉门,将阅读和办公结合起来,巧妙借用飘窗台达到休闲与办公的融合,书桌+书柜一体化的设计,留出更舒适的活动空间
▲ 书桌为屋主特别设计了玻璃展示柜,放置她的人偶手办
▲ 走廊往里走进入私域空间,左右两侧分别连接长辈房和次卧,尽头到底是主卧
▲ 主卧将原始的布局进行改动,衣帽间与主卫排列在进门右侧,做到功能的划分,同时寝居空间获得宽阔舒适的面积,选择智能床垫,带来更舒适的睡眠体验
▲ 床头靠近窗户一侧,打造悬浮梳妆台
▲ 另一侧布置床头柜和装饰画,克莱因蓝与黑色穿插,色块堆叠出的图形,极具建筑设计感,隐示屋主从事的行业
▲ 步入式衣帽间,两边是顶天地立大衣柜,整个空间都是白色,视觉整洁清爽
▲ 主卫浴室柜和马桶均做悬空设计,便于清洁,马桶区布置淋浴区
▲ 屋主的父母偶尔会来暂住,空间同样以淡雅、舒适为主
▲ 挂画最中心的蓝色,呼应全屋的重点,外部层层深入的色彩,增强装饰画的纵深感,仿佛要将中心的蓝色包裹,层层围绕环抱蓝色块面,也喻示着父母对子女一生的关怀
声明:该文章来源互联网,由乐后屋装企精灵整理发布或转载,如有侵权请及时联系平台客服进行删除,版权归原作者所有,本处仅作为分享使用。
算一算我家装修多少钱? 5秒免费获取装修报价
扫码获取
微信扫描二维码关注

