欢迎您访问乐后屋装企精灵官网!

手机扫码

400-672-2009

127㎡法式复古风三居,把客厅打造成阅读空间,入户即是扑面而来的浪漫~

浏览数:3465次

/

发布时间: 2024-05-17

▲ 项目面积127平,本案从立意至功能,更注重格物致知的设计初心,没有以技感人,也没有流于形式,而是从现实而具体的需求出发,展开认真细致的思考,回应业主对居住功能和生活美学的需求


▲ 原始结构图

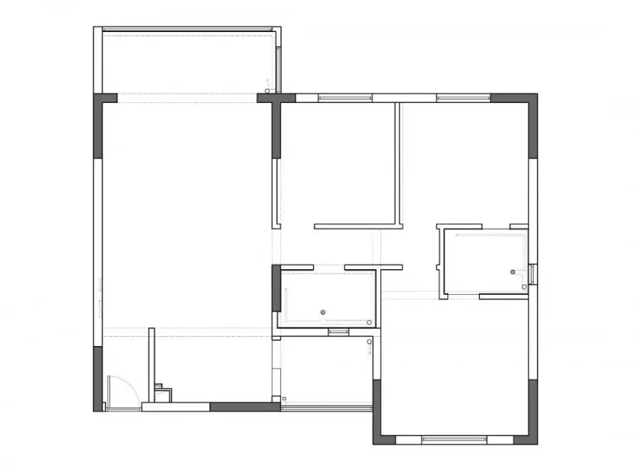
▲ 平面布置图

平面布局的思考首先需要解决的是采光和舒适性的问题,此外,业主三口之家居住,除了保留主卧、儿童房外,客房居住频率不高,但也需要考虑父母偶尔的小住

▲ 将原先内开的入户门调整成外开子母门,沿墙定制一组高低储物柜;在玄关和客厅中间增加一个小的储物间,用来收纳户外用品、童车等,同时解决入户门正对客餐厅私密性不足的问题;右手边墙面顶部设计玻璃隔断,打破空间的单调又补充了玄关区的自然采光

▲ 经过玄关来到开放式客餐厨,整个空间以奶油色打底,配上深色人字拼木地板和复古家具,透着舒适与优雅

▲ 储物间外墙设置整面仙鹤图,成为空间点睛之笔

▲ 客厅采取去电视化布局,同时选择小体量家具,给孩子一个宽敞无障碍的活动空间

▲ 背景打造开放式金属书柜,环保实用,连续的拱形造型起到很好的装饰效果,阳台一侧做高柜补充收纳

▲ 书柜结合转角工作台,方便阅读和书写

▲ 客厅与客房之间用玻璃窗替代原本隔墙,使空间相互关联,更显通透,下方布置复古实木组合柜,美观又实用

▲ 客厅小景

▲ 轻薄的白纱自带柔光滤镜,装点绿植散发自然气息

▲ 餐厅,选择中古风的餐桌椅和吊灯,颜值与质感并存

▲ 原始户型厨房无采光,设计师将厨房做开放式,并往南阳台外扩,南阳台一分为二后,另一半留作家政间,同时厨房与家政间用玻璃窗隔断,最大限度改善餐厨区采光,丰富人在不同空间的互动关系

▲ 走廊通往私领域空间,走廊整体位置北移,压缩一部分北向卧室的面积,增加采光更好的南向空间利用率

▲ 墨绿色半墙从客厅延伸而来,联幅的游园图和端景的仙鹤图,为空间增添了几分质感与格调

▲ 走廊小景

▲ 客卧门位调整,改变门开墙角的问题,在门后增加书桌,客卧平时作为书房,长辈偶尔小住,黑色格子窗搭配木质百叶帘,保证通透性和私密性

▲ 主卧内部装饰用复古和法式的元素混搭,碰撞出另一番的意味和情趣;旷游山林、簪花撵茶的词画卷轴式地展开,让人时刻熏陶在跨越千年的极致审美和闲达生活中

▲ 藤编元素的梳妆台凸显质感

▲ 雕花灯盘下点缀一盏中古吊灯,有种法式的小浪漫

▲ 床尾打造整排嵌入式衣柜,一旁的玻璃门后是利用原客卫空间改造而来的衣帽间

▲ 三口之家居住,保留一个卫生间即可,将主卫从卧室独立出来作为公卫,同时面积扩大改为功能强大的三分离式卫生间

▲ 洗手台设计高矮两个台盆,为孩子提供更加友好的自理环境

▲ 铁艺格子门搭配复古色雨林砖,让卫生间兼具了装饰美感,完成形式与功能统一的考量

▲ 淋浴间配备浴缸,可以泡澡放松,墨绿色半墙结合花砖,吸睛又耐看

声明:该文章来源互联网,由乐后屋装企精灵整理发布或转载,如有侵权请及时联系平台客服进行删除,版权归原作者所有,本处仅作为分享使用。

乐后屋装企精灵官方网站   技术支持 : 乐后屋装企精灵

算一算我家装修多少钱? 5秒免费获取装修报价

扫码获取

预约量房

扫码即可获取

预约设计

扫码即可获取

免费报价

扫码即可获取

预约看工地

扫码即可获取

微信扫描二维码关注

立即打开微信扫一扫