手机扫码
当前位置:
首页 > 装修常识 > 140㎡改造:原木+北欧风,这才是家的样子~
浏览数:3514次
发布时间: 2024-06-17
这个曾经年久失修的老宅,通过精心的翻新与装修,焕发出新的生命,变成了一个既温馨又功能齐全的家园。
客厅靠窗的位置,摆满了生机盎然的绿植;开放式的厨房连同多功能区,成了家庭活动的核心地带。
巧妙的空间布局满足了多样化的兴趣和需求,每个人都能在这绿意环绕的家中找到自己的放松与享受之处。
●●
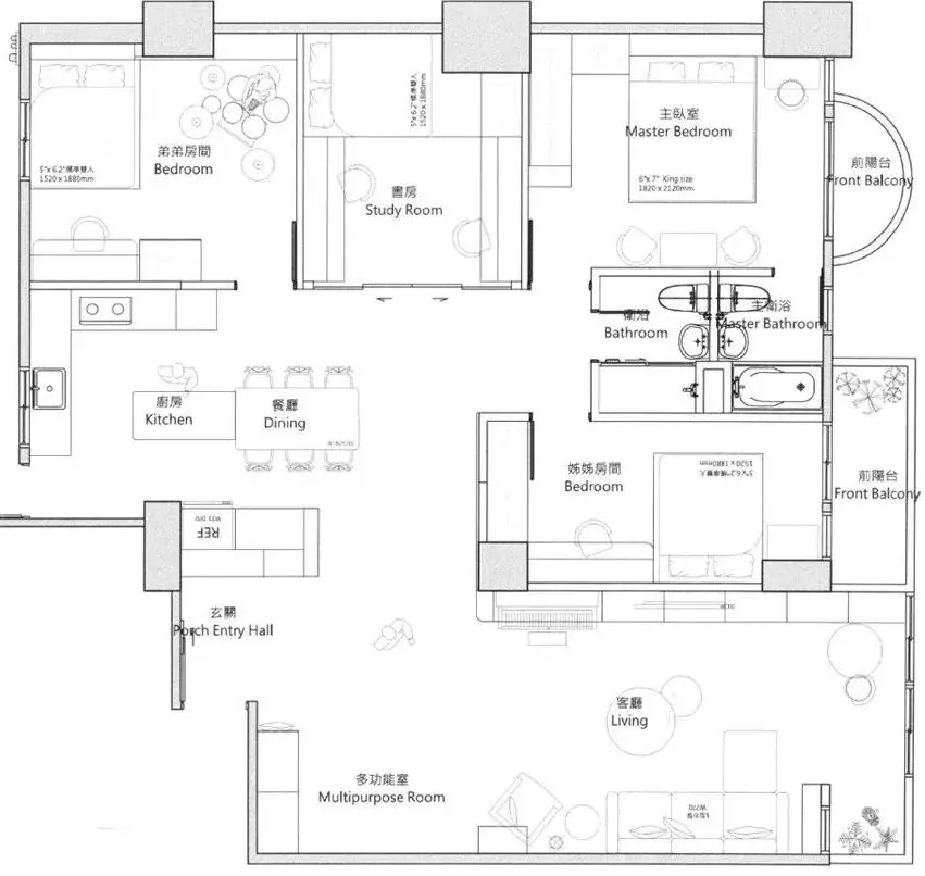
140 ㎡/ 4 房 2 厅 2 卫 / 现代风格
●●

玄关图案丰富的六角花砖,明确了玄关、客厅的边界。

左边定制柜上,洞洞板增加了悬挂物品的灵活性。白色和木色的搭配给人和谐、舒适的感觉。
●●

以木纹装饰横梁,贯穿整个客厅,营造出温暖稳重的氛围。天花板没做吊顶,一扇三叶吊扇,带来悠闲的气息。

电视墙涂上灰色艺术涂料,简约而有质感。圆拱元素和层叠层板成为家中焦点。窗边的高架区域变成阳光植物区,绿意盎然。
●●

在这个收纳与舒适兼备的空间里,高架式的多功能室让主人能轻松活动、拉伸筋骨,还能容纳多人聚会。

阶梯设计考虑到未来的年龄增长,采用了圆角处理,方便长辈上下。储物空间设计巧妙,可收纳生活用品,而顶部的柜子则可以隐藏琐碎物品,门板设计利落。

多功能区的台阶与穿鞋椅融为一体,绿色背景营造出宁静的氛围,仿佛置身于柔软的草地上。
●●

为了实现开放式厨房的愿景,果断拆除了原有的隔墙,中岛与餐桌布置成回字形排列,营造出宽敞的厨房餐厅区域。


厨房炉灶区用了绿色玻璃,高柜简洁不拥挤,中岛选用耐高温的石英石,配了抽拉式电器柜,方便收纳和清洁。
木质餐桌成为家人聚餐和独处时的温馨场所。走廊贴上大片镜子,为喜欢跳舞的女儿提供了挥洒舞姿的空间。
●●

书房选择玻璃滑门,两侧配有书桌和插座。由于无对外的窗户,更要注重通风与采光,使用排风扇确保空气流通。

半高床架下可摆放单人床,备有简易衣柜和隐私窗帘,书房可灵活用作客房。
●●

主卧整体选择低饱和度的颜色,床头设置了与上梁宽度相相同的小平台。搭配低环保定制柜,打造出安心的收纳空间。

衣柜内的吊杆配备了红外线感应式照明,方便取用衣物。
●●



梁下采用圆形修饰,美化了简单的造型。书桌上方连接了置物柜,充分利用了垂直空间,提高了储物效率。
●●


采用简约率性的灰蓝色系为主调,利用柱体与墙之间的凹处设置吊架,并预留空间放置乐器。
●●


主卫浴缸墙上贴了植物图案的花砖,仿佛置身于热带雨林;客浴则安装了四合一暖风机,加强了通风、除湿效果。
声明:该文章来源互联网,由乐后屋装企精灵整理发布或转载,如有侵权请及时联系平台客服进行删除,版权归原作者所有,本处仅作为分享使用。
算一算我家装修多少钱? 5秒免费获取装修报价
扫码获取
微信扫描二维码关注

