手机扫码
当前位置:
首页 > 装修常识 > 【现代简约风设计案例】3套小户型室内设计案例,这才是家的样子!
浏览数:643次
发布时间: 2024-06-27
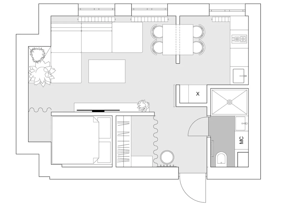
01
Rauschen
这所小宅面积65㎡,通过精致悦目的细节,将工业风的硬朗简约与家居的精巧温馨独具匠心的组合在一起,使空间结构明确、外观明快简洁,活泼不缺矜持,洁净不显清凉,既有现代生活的简约实用,又富有温馨的生活气息。
02
FLAT 3.0
一座32㎡的公寓改造项目,考虑到空间的面积限制,设计师减少了室内的装饰品,以不同材质的不同属性、色彩出发,营造出小空间内充满张力的戏剧效果。
03
CatFlat
44㎡的公寓改造项目,需要利用有限的预算发挥至空间的最佳状态,不论是功能区的布局还是视觉上的效果。
声明:该文章来源互联网,由乐后屋装企精灵整理发布或转载,如有侵权请及时联系平台客服进行删除,版权归原作者所有,本处仅作为分享使用。
算一算我家装修多少钱? 5秒免费获取装修报价
扫码获取
微信扫描二维码关注

