手机扫码
当前位置:
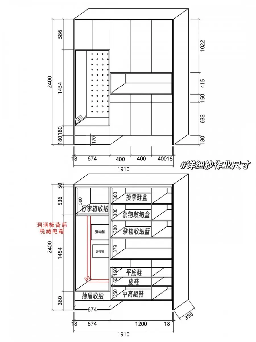
首页 > 装修常识 > 入户玄关鞋柜设计|超实用收纳布局‼️附尺寸~
浏览数:1012次
发布时间: 2024-08-27

我们设计的这个1.9m多功能玄关鞋柜,
能放鞋子、衣帽包包、雨伞、快递包裹,
甚至是行李箱…承担着衔接室内外的重任,
打造一个富有仪式感的实用空间[萌萌哒R]!
声明:该文章来源互联网,由乐后屋装企精灵整理发布或转载,如有侵权请及时联系平台客服进行删除,版权归原作者所有,本处仅作为分享使用。
算一算我家装修多少钱? 5秒免费获取装修报价
扫码获取
微信扫描二维码关注

