手机扫码
当前位置:
首页 > 装修常识 > 94㎡奶油原木风三居,巧妙布局,家居收纳一步到位,尽享舒适生活~
浏览数:568次
发布时间: 2024-10-11
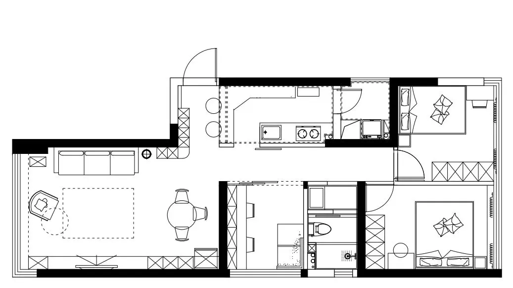
今天要分享的是一套94平米的奶油原木风的家装案例。家庭成员是业主夫妻和两只可爱的小猫咪。整体空间以温柔的白色为主基调,加入木质元素,淡雅的色系将空间的简约之美展现得淋漓尽致。




























声明:该文章来源互联网,由乐后屋装企精灵整理发布或转载,如有侵权请及时联系平台客服进行删除,版权归原作者所有,本处仅作为分享使用。
算一算我家装修多少钱? 5秒免费获取装修报价
扫码获取
微信扫描二维码关注

