手机扫码
当前位置:
首页 > 装修常识 > 新房量房注意事项,业主必须要知道的细节!
浏览数:7825次
发布时间: 2020-03-24
在开始准备装修的时候,总是会有设计师或者装修公司的客服人员来打电话,问方不方便量房。很多业主或许会有疑惑,为什么装修就非得量房?量完房是不是就必须选这家装修公司?
并不,简单来说,量房是装修的第一步,设计师会与业主一起沟通装修的想法创意,并根据房屋情况与业主的需求给出大致报价。量完之后,要不要选择这家公司或者这个设计师都可以重新做决定。
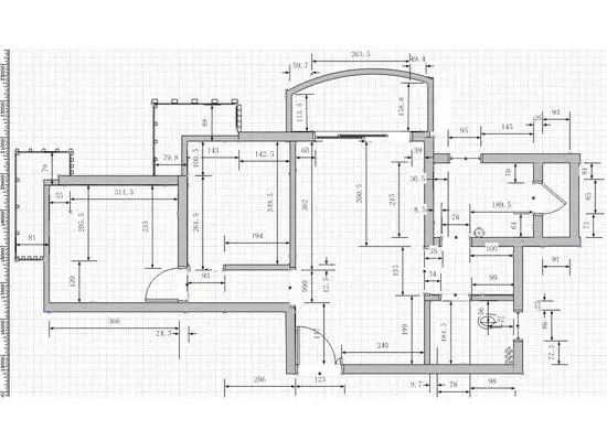
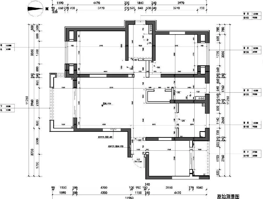
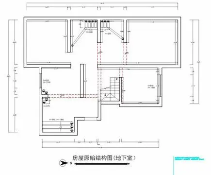
量房是装修的第一步,通常由设计师参与,对业主的房型进行具体的测量、记录以及初步的设计构想。
01.了解房屋详细尺寸
通过量房准确的了解房屋内各房间的长、宽、高以及门、窗、空调、暖气等的位置,然后做出具体的户型规划。
02.确保预算的准确性
做预算需要填入具体方量和损耗,如果仅凭图纸上的尺寸是很容易与实际有出入的,导致最后的预算不准确。
03.方便业主比价
设计师只有到现场量了准确的尺寸,才能跟业主出具详细的设计图和预算。
如果没有量房,是无法给出一个详细的设计图和预算的,对于业主对比几家装修公司,也没有实质性的作用!
04.设计师与业主实地沟通想法
在量房时,设计师和业主都会到场,如果业主对房屋的设计有一定的想法和要求,在现场测量时,可以和设计师进行沟通,看看这些想法是否可行,当面沟通效率更高。
05.了解房屋格局利弊情况
通过现场量房,设计师会仔细的观察房屋的位置和朝向。以及周围的环境状况、噪音是否过大、空气质量如何、采光如何等,都会直接影响后期的设计。如果遇到一些房子格局或外部环境不好的情况,就需要设计来弥补。
06.保证后期房屋装修质量
只有量房比较精确,才能做出准确的设计,不至于后期施工时,因为尺寸不对而无法实现。一些项目如上下水、暖气、煤气位置,如果没有测量或者测量不准确,就有可能导致后期购买的坐便器、水盆等,因尺寸不对无法安装而发生退货、换货的情况。
其实,量房就是装修的第一步,只有对房间各个地方的尺寸都了如指掌,才能更好地进行接下来的装修设计、制定预算等工作。
量房前,你要做什么?
量房之前,要把工地大致清理干净,一些不要的建筑垃圾要及时清走,这样才不会影响装修公司或施工人的人员上门量尺。
量房时,你要做什么?
量尺的现场最好业主本人在现场,可以现场沟通一些细节,比如天花吊顶想怎么弄,阳台需不需要改动,因为这些变化都是会影响到装修报价的。
量房后,你要做什么?
量完尺后,让装修公司或者施工队人员提供你一份量尺尺寸图纸,这样,方便后期购买家具的时候,知道家里空间的长度和宽度。
全包装修怎么量房?
1.如果选择全包装修,一般量房人员是装修公司提供的专业人士,他们的设备齐全,能够对房屋进行精确的测量。
2.全包装修量房可以参考户型图,先将屋内各房间的平面尺寸量好并标记。 还需要测量窗户的尺寸,特别是飘窗,这涉及到后期定制。
3.全包装修测量的顺序一定要按从入口开始顺时针顺序逐一房间测量,不能遗漏中间的任何一个房间和细节,常规房间仅需要测量X轴和Y轴两个方向的尺寸即可。
4.全包装修量房的时候,还需要勘探水电路和基层,了解水电路、墙顶面、地面和厨卫的情况,这样方面确定具体的水电路改造项目和数量。
自己量房的步骤是什么?
1.工具准备,①卷尺和激光尺两个工具提前准备好。②两种颜色的笔,黑色和红色,黑色用来记录,红色笔用于强调的部分;a4可以带几张。
2.测量前准备,①户型图的准备工作,要找一下自己的户型图,最好还是要找带承重墙的户型图,承重墙是在装修过程中不可以拆改的,提前做到心中有数,这样在测量的过程中就有针对性图纸黑白为宜,如果自己会ps可以处理一下,图片要看起来干净、清晰,便于后期的标准。黑白标准的户型纸便于后期的标准,自己量房数据是为了给你设计师看的,便于后期的沟通,标注要清晰②先要认识一些标准的符号,用图来了表示。
3.标准的单位用毫米(mm),遵循从大到小,先量大尺寸再量小尺寸的原则①大尺寸:房屋各个空间的长、宽、高,测量这种数据的时候可以用激光尺测量,提供效率②小尺寸:窗户、门洞、门垛、层高、墙厚、梁、管道直径、下沉、顶面管道最低点、保温层、强弱电箱位置
4.门、窗、门洞的长宽厚度标注清楚。
5.轻体墙和承重墙需要标注清楚(原始结构户型图上都会有标注),墙体厚度需要测量精准。轻体墙体是可以进行拆改的,而承重墙体是不能进行拆改的,一般是通过空鼓锤敲击的方式来判断。
6.风口、烟道等位置需要标注,包括烟道的长、款、高,并且要附上图片。
7.卫生间阳台上下水的位置,下水管的直径,顶部下水管的深度(关系的吊顶的高度)
8.梁的位置,宽度和高度(要附图片)
9.强弱电箱的位置和大小,(可以用另一种颜色的笔进行标准)门、窗、门洞离顶面、地面、左右距离标注清楚。由下往上标准h1/h2/h
10.全屋的拍照,拍摄全屋各个房间的清晰图片,站在房间4个角落,每个角落至少1张, 拍摄全屋视屏付语音介绍
装修公司量房,怎么知道没有被坑?
1.首先不量房就出报价,比如随便从网上找一个跟你家相似的户型图估算装修费用报给你,是绝对不合理的,出报价前必须先量房。
2.量房的时候多找几家,对比是否有出入,如果某一家连承重墙和非承重墙都标注错了,那么果断淘汰。
3.在量房过程中,引导设计师讨论水电改造、烟道管道等问题,比如厨房没有地漏,而设计师却强调一定要做防水,那么该设计师水平有限,建议淘汰。
免费量房和免费设计,是真的吗?
是真的。市场上装饰公司竞争激烈,所以超过百分之八十的公司上门量房是不需要费用的!免费设计也是真的。一般装饰公司的设计图纸会免费给你做平面图,因为出平面图较为简单,花费时间短。但是施工图和效果图是收费的,因为花费的时间较长,所以一般是平面图你满意了之后,一般需要收取2000到3000元(设计师资质不同,费用不同)。除此之外装饰公司一般还会免费给你出一个材料清单供你参考,但是平面图和材料清单虽然免费,但都不能由业主带走。
装修量房是装修的第一步吗?
是。
量房是装修的第一步,设计师会仔细观察房屋的位置和朝向,如果遇到一些房子格局或者环境不好的情况下,设计师就可以通过设计来弥补,比如采光不好,后期就可以利用配色增加宽阔感,又或者增加一些光源,这样业主也会比较满意。只有量房才能帮助设计师做出准确的设计,比如家具的摆放、暖气、煤气的位置等,如果没有测量或者测量的不准确,这都会给后期的装修工程带来很多的麻烦,有也可能出现家具尺寸不对的问题,导致日后使用家具的时候会不方便。
声明:该文章来源互联网,由乐后屋装企精灵整理发布或转载,如有侵权请及时联系平台客服进行删除,版权归原作者所有,本处仅作为分享使用。
算一算我家装修多少钱? 5秒免费获取装修报价
扫码获取
微信扫描二维码关注

