手机扫码
当前位置:
首页 > 装修常识 > 鞋柜装修——为你的鞋子装一个家!
浏览数:977次
发布时间: 2020-03-26








换鞋凳多宽最合理?
40*60cm。换鞋凳长度以及宽度我们可以我们可以自己随意设置,一般尺寸为40*60cm较为常见,也有50*50cm的小方凳,也有50*100cm的长方形鞋凳,,鞋凳的高度对于我们是否能够舒适使用鞋凳有着较为重要的作用。一般鞋凳的高度而言就是在600mm-800mm高,这个高度最为舒适
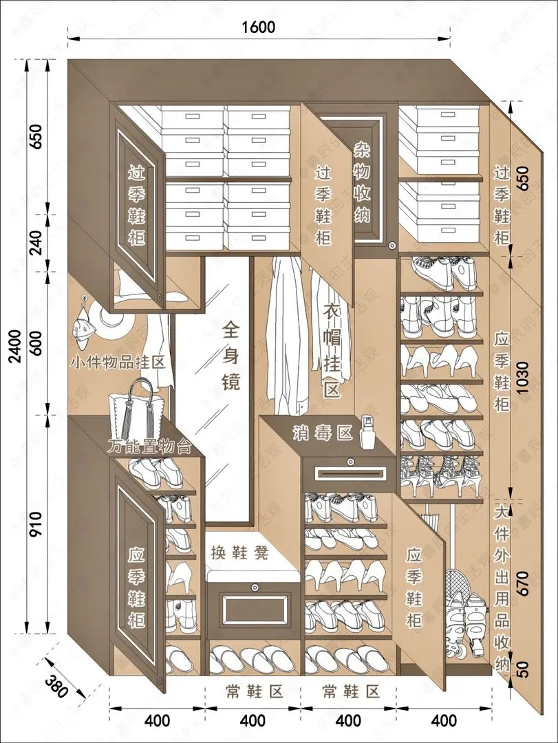
鞋柜深度多少?
35cm-40cm。正常鞋柜深度为35cm-40cm,可以平放45码以下的常规鞋型,如果有喜欢加鞋盒收纳的习惯,建议把深度设为38cm-40cm,才能保证足够的空间收纳。
鞋柜隔板高度多少合适?
普通鞋子的层高标准是15cm,短靴层高标准为25cm,长筒靴的层高标准为50cm。
可以根据家里的鞋子种类来进行设计层板的高度,比如家里女性长筒靴比较多,那么可以考虑其中一个空间设计成50cm层高。
温馨提示:千万注意定制鞋柜的时候要注意留可活动层板。鞋子高度不一,标准层高15cm不一定满足所有需求。如果定制鞋柜,一点要跟商家说打好排孔,这样后期想要改变层高可以随时调整。
长筒靴子怎么放?
长筒靴这样收纳太赞了,再不担心变形不好找,家里长筒靴一直不知道怎么收纳,以前都是直接卷一下放鞋盒,拿的时候一个个打开实在太麻烦
声明:该文章来源互联网,由乐后屋装企精灵整理发布或转载,如有侵权请及时联系平台客服进行删除,版权归原作者所有,本处仅作为分享使用。
算一算我家装修多少钱? 5秒免费获取装修报价
扫码获取
微信扫描二维码关注

