手机扫码
当前位置:
首页 > 装修常识 > 100㎡精装房改造,变身为静谧舒适原木风美家,不张扬又有格调!
浏览数:259次
发布时间: 2022-07-07
图赏
▲原始结构图
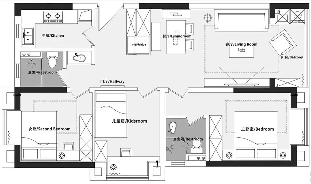
▲平面布置图
入户



客餐厅











卧室


声明:该文章来源互联网,由乐后屋装企精灵整理发布或转载,如有侵权请及时联系平台客服进行删除,版权归原作者所有,本处仅作为分享使用。
算一算我家装修多少钱? 5秒免费获取装修报价
扫码获取
微信扫描二维码关注

