手机扫码
当前位置:
首页 > 装修常识 > 25w翻新,只住3年?53㎡一人居小家,开轰趴都宽敞无敌!
浏览数:20次
发布时间: 2024-02-20

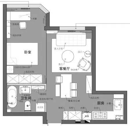
原始户型图
原始结构是个标准的一居室,
53㎡一室两厅一厨一卫。
屋主比较喜欢开阔的空间,
设计师在格局上做了针对性的调整。
考虑到改造预算,在硬装上面,
格局保持整体开放的状态,
在原户型基础上做了局部拆除以及找平,
把更多的把精力放在了功能、
家具、软装搭配等方面。

平面布置图
麻雀虽小,五脏俱全,房子不大,
但生活的舒适感和仪式感一定要足足的。
改造要点提示:
1、屋主下厨频次偏低,因此拆除了原厨房隔墙,改为开放式,各个空间连通更显开阔;
2、客厅放弃传统的“沙发对电视”格局,根据屋主生活需求采用“会客模式”,满足亲友聚会;
3、保留原卧室地台,通过窗帘的形式将与客餐厅隔断,简单又省钱;
4、卧室阳台设置书桌椅,作为学习办公区;
5、移动了卫生间门位,门后设置储物空间。
玄关

原户型缺乏独立的玄关区域,
设计师在进门右手边设置鞋柜+衣柜,
与厨房橱柜连为一体,并保持宽度一致。
注意看这里柜子中间特意留空,
这样是便于进门随手放置快递、包包。
进门左侧墙面设计了挂衣区,
秋冬季的厚外套可以随手挂放收纳,
免去了常开关柜门的麻烦。
纯白的柜体包括白色的房门,
增加了空间漫反射,虽然尺度不宽,
进来却完全不会感到促狭昏暗。
餐厅

由玄关便可一睹室内全貌,
打开之后的厨房与客餐厅连为一体,
空间更显敞亮开阔,过道变宽后,
行走其中也觉得十分舒适。

考虑到整体空间都是浅色打底,
于是采用了深色的餐桌作为视觉重心,
搭配装饰摆件和吊灯,层次更丰富。
餐厅区域同时兼顾了一定的会客功能,
宽敞的餐桌也偶尔会成为屋主的办公区。
愉快的周末时光,长桌也可hold住多人使用,
满足与亲朋好友一起吃火锅聊天。

设计师在空间中大量采用了弧形元素,
包括卫生间门上的拱形长虹玻璃,
餐桌吊灯与餐桌椅造型,
曲线自带温柔气质,柔化空间氛围。
鱼骨拼木地板客餐厅通铺,
视觉上有延伸效果,
也带来几许自然材质的温润雅致。

餐厅背景墙设置一面大型斗柜,
柜身有开放、封闭、玻璃等多种形式,
可按需分类收纳书籍、餐具,
也可以展示屋主喜欢的各式摆件。
厨房

开放式厨房采用与墙面相近的灰白色,
整体感更强的同时也延展了视觉,
冰箱尺寸经过测量做了内嵌,
与玄关鞋柜相连成为一个整体。
小厨房建议采用U型布局,利用率最高,
洗-切-炒的动线依次排开很舒适。
烹饪区对面也做了半高台面,
将来若是小家电进一步增加,
还可以在此打造置物架扩充收纳,
目前留白,是因为屋主觉得收纳已经够用了。
客厅

传统的客厅一般作为交流、会客空间,
因此多采用“沙发对电视”的格局。
随着科技发展和电子产品的盛行,
年轻人很少再被这些理念束缚。

这里就取消了电视,因为不符合屋主需求。
对他来说,一盏灯和几本书更觉得舒适,
周末则约上三两好友,
围坐在这里聊天、打游戏。

无主灯设计,明装筒灯照明,
保持整体简洁的风格,
沙发旁的落地灯营造几许温馨,
灯光错落有致而均匀地分布开来。
小巧的茶几与不规则单人椅随意摆放,
显得轻松随性,也增添趣味。

装饰画也采用了不拘一格的落地形式,
图案是近期大热的棋盘格造型,
简约又时尚,是年轻人的家应有的模样。
卧室

客厅和卧室用遮光帘简单做隔断,
形式灵活而且可以减少造价,
因平时只有屋主独居,
对私密性和隔音几乎没有担忧。
卧室衣柜采用了原先的衣柜,
样式、色系都能与整体和谐契合,
容量对屋主来说也足够。

为方便使用,床头另添了一副衣架,
可以挂放睡衣和次净衣,
也可用于衣物晾晒。

床头柜的选择也暗藏心机,
款式虽然简约,却设计了大小不同
的数个开放格子,加上柜顶作为置物台,
可以井井有条地收纳不同物品。

原本的阳台区域做了框景设计,
四分之一弧形修饰边角,犹如画框,
将窗外风景融进来,美感十足。

弧形墙也起到了隐形隔断作用,
将卧室与阳台分开,阳台作为工作区。
大空间以不同形式划分为若干个小区域,
彼此联通,隔而不断,很适合小户型。

借助临窗的采光优势设置办公区,
书桌采用string壁挂置物架形式,
相比传统的柜体更显轻盈简洁。
暖气片也是保留的原来的,
为视觉和谐,重新喷了白色漆。

屋主的书集中放在了餐边柜里,
减轻收纳压力,这里只放置常用物品。
卫生间

卫生间门位移后,功能分区更合理,
并在门后塞下了收纳薄柜。
整体与厨房一样采用灰白色,
显得清爽而明净。

进门左侧设置了洗烘两件套,
湿区采用了浴缸和淋浴一体的设计,
长虹玻璃半隔断,实现干湿分区,
同时不影响空间通透感。

为控制预算,其实很多家具软装
都是从原房子保留下来的,
为平衡整体风格,设计师也是费了不少心思。
这个小家,很难界定是某种具体风格,
但在大家一起的用心改造下,
它完美契合了屋主的审美、习惯和喜好,
是繁华的首都里一方温暖的巢穴。
声明:该文章来源互联网,由乐后屋装企精灵整理发布或转载,如有侵权请及时联系平台客服进行删除,版权归原作者所有,本处仅作为分享使用。
算一算我家装修多少钱? 5秒免费获取装修报价
扫码获取
微信扫描二维码关注

