欢迎您访问乐后屋装企精灵官网!

手机扫码

400-672-2009

中古风:独居界天花板!173㎡复古自然大宅,处处写着“享受生活”~

浏览数:126次

/

发布时间: 2024-02-22




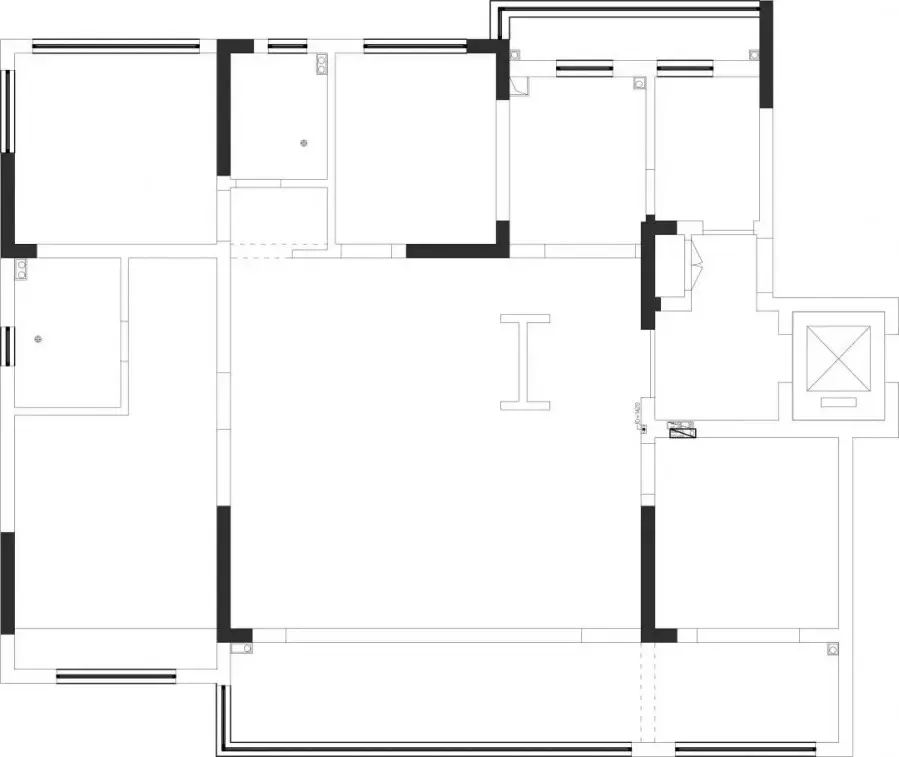
房子原本是四室户型,一人居住略显累赘,

也不能满足屋主对于功能空间的需求。

设计师将两间房打开后重新规划,

实现了家政区、影音室、书房、休闲区等功能,

来满足屋主的“惬意独居生活”。



改造要点提示:

1、入户墙体与厨房空间衔接并定制柜体,满足玄关隔断视野需求,同时扩充储物容量

2、厨房与家政间打通做开放式处理,空间更开阔,玄关也更加明亮;

3、次卧拆墙改为家政间,增加收纳能力,并安置客卫马桶区;

4、主卧与次卧之间墙体拆除,次卧打造与墙面平齐的衣柜,节省空间且不影响主卧;

5、餐厅位置与客厅一体,更符合屋主日常使用需求;

6、东次卧改为半开放式多功能区,与阳台打通以折叠门隔断,利用阳台空间安置浴缸,集影音、客房、泡澡等多功能为一体,增加公区空间的通透感。



在风格上,整个空间底色轻和舒缓,

近似于“没有颜色”的朴实,

而软装选择则偏向混搭,

复古、质朴、轻盈、简约等不同气质,

以恰当的配比柔和装饰于家中,

呈现出一个独具特色质感的独居空间。


玄关&厨房


将原有厨房空间重新整合打开,

左侧打造弧形入户端景墙与厨房相连,

增添玄关空间的完整性与私密性,

让进门后的第一视野更具有仪式感。


端景墙中间嵌入老榆木抽屉柜

与白墙相衬,清和之感盈然而生,

抽屉也满足出入户杂物的收纳需求。



利用侧面补充收纳之后,

厨房舍弃了传统的吊柜布局,

如此便可让空间视觉更加轻盈开阔


半墙铺贴瓷砖起到防水效果,

上半墙拼接硅藻泥,自带质朴纹理感。

吊顶则采用木制造型梁

让烟火气十足的空间也染上几分浪漫。


厨房内部看向玄关


玄关侧面墙体做高柜设计,

通顶的柜体结合嵌入式冰箱,

美观整洁且扩充厨房的储物空间。

冰箱布置于外侧,缩短了动线,

从客餐厅过来拿取饮料水果更加方便。


家政间

家政区看向客餐厅视角


左侧空间用以定制顶天立地收纳柜,

纯白柜体仿若白墙,将柜体隐形。

与次卧相邻的右侧打造客卫马桶区,

便于客人来访时使用,动线方便。



收纳柜靠墙角落预留出来安装台盆,

台面选用大理石板并延伸上墙。


客餐厅看向家政区视角


家政区与客餐厅之间开放连通,

无门槛石地砖通铺,增强整体感,

上方吊顶安装中央空调及新风系统,

避免占据客餐厅的空间层高。


客卫


客卫马桶区从原洗手间中剥离出来,

置于家政区,与公共区域联系更为紧密,

方便朋友前来做客时使用。

石材半墙裙与植物壁纸的结合,

让小小的空间视觉效果更显丰富


利用壁挂马桶后方空间以及深度差,

巧妙嵌入石材一体盆

便于如厕后就近洗手清洁。


客厅


地面选择有怀旧肌理感的灰色水泥砖

采用井字形拼法,增添视觉美感及层次性,

通铺全屋加强空间整体感。


这个角度可以看到沙发背后的家政区,

家政间与公区之间做开放式处理,

内部L型布局增加结构层次感,

同时不影响采光,保留公区的通透明朗



客厅的布局不同于传统思路,

沙发以不对称形式,两排相对摆放,

搭配移动灵活的单人位,

形成围合式布局,亲友小聚时更加温馨。



餐厅与客厅前后整合为一体,

节省空间且保证视野开阔通透,

同时不影响各自的功能独立。



客餐厅均采用统一的平面吊顶,

顶面一体化设计更显开阔与整体性,

增加了视觉上的延伸感。

暗装筒灯与吸磁灯和谐搭配使用,

可调整丰富的光影层次及灯光效果,

满足居家时不同场景的灯光氛围需求


餐厅


木质长餐桌强调餐区自然质朴的气质,

也延展出就餐之外的其他功能,

宽敞桌面可满足工作台、会议桌等使用。



两盏纯白蚕丝吊灯是空间的亮点之一,

温柔弧线呈现出流水般的舒缓气质,

烘托光影,也很契合安静复古的空间质感。



餐厅侧面靠墙定制了水吧台

将餐区使用频率最高的功能整合于此,

更契合屋主的日常使用习惯。

吧台采用白色柜体与木质台面结合,

简洁大方,一幅艺术装饰画随意摆放,

温柔耐看,大地色系的画面也与空间呼应。


阳台


阳台侧面靠窗打造飘窗,

结合窗户尺寸于下方定制卡座

收纳柜体与台面相结合,

实现兼顾实用与美丽的阳光角落。


旁边墙面利用厚度内嵌了壁龛

拱形造型烘托复古气质,

摆上复古造型蜡烛,氛围感瞬间拉满。



正面阳台同样做休闲区布置,

双人沙发搭配榆木边几,

构成一个悠闲放松的场所。


落地窗将晴日阳光与景色引入室内,

轻盈的白纱帘被风拂起涟漪,

闲暇的午后泡壶茶,

窝进沙发晒太阳或看书,

感受安静时光里慢下来的舒缓节奏。


书房


临近客餐厅的东次卧被阳台横跨相连,

将部分阳台区域扩入次卧内部,

并定制木百叶折叠门

灵活控制两个空间的连接与独立。



空间内部则改动为多功能休闲空间,

直排长沙发可坐可躺,搭配万向轮边几,

书房、影音、泡澡为一体,

契合屋主生活习惯,提升品质。



纳入多功能室的阳台改做浴室,

提前确定下水管道等结构,安置浴缸,

结合大型落地绿植和复古吊灯,

实现一处度假酒店既视感的泡澡空间。


背景墙定制了壁龛收纳,

方便放置洗漱所需的卫生用品,

也可以摆放香薰、蜡烛等增添情趣。


主卧


主卧在遵循整体风格的基础上,

融入了更多美式乡村的元素,

铁艺烛台吊灯满满的复古怀旧感,

混搭出睡眠空间特有的静谧、放松和惬意。



床头背景墙影影绰绰的树叶壁纸

与做旧老木头的藤编床很搭,

床头柜上的丝绸流苏台灯,

粗粝的老木纹理碰撞精致典雅的丝质,

独特的气质韵味,为床头点亮一份氤氲光影。



床头另一边放置了一只实木斗柜

深色木质搭配厚重的黄铜画框,

犹如穿越回中世纪的某个时刻。

这里也是屋主钟爱的阅读角,

见证着很多沉浸式阅读的时刻。



床尾靠墙安置了屋主的化妆桌

一旁的花艺流苏落地灯典雅又复古,

犹如文艺复兴时期亭亭玉立的贵族小姐。


主卫


主卧卫生间布局为U型,做干湿分离设计,

隔断选用独特的琥珀色圆孔玻璃砖

增加空间透光性,视觉效果也艺术十足。


次卧


次卧目前作为备用卧室,

床尾定制了与墙同宽的书桌,

悬空造型轻盈简洁,

作为办公或者阅读空间使用。

上方定制壁挂开放式书柜,

采用优雅圆弧转角,美观也防止磕碰。


次卫


次卧卫生间洗手台采用石材一体

部分上墙起到防水效果。

入墙式水龙头简洁大气也节省台面空间,

墙角还做了艺术雕刻,彰显审美品位。



家要美,也要好用,四室改两室后,

规划了会客影音、休闲一体的独立空间,

和处理日常储物清洁的家政间。

整体居家氛围是去风格化的,

朴实柔美,偏重自然,

简单干净的基底在上妆时更为百搭。



随着四季的变化,家也跟着变化,

随心、随时间、随四季而动,

家与生活同频,便是屋主最喜欢的模样。

声明:该文章来源互联网,由乐后屋装企精灵整理发布或转载,如有侵权请及时联系平台客服进行删除,版权归原作者所有,本处仅作为分享使用。

乐后屋装企精灵官方网站   技术支持 : 乐后屋装企精灵

算一算我家装修多少钱? 5秒免费获取装修报价

扫码获取

预约量房

扫码即可获取

预约设计

扫码即可获取

免费报价

扫码即可获取

预约看工地

扫码即可获取

微信扫描二维码关注

立即打开微信扫一扫