手机扫码
当前位置:
首页 > 装修常识 > 装修案例 | 150㎡高品质奶油风三室,干净素雅明亮的空间,无法抵挡的温馨感~
浏览数:6759次
发布时间: 2024-06-20

▲ 项目面积150平,一对九零后的新婚夫妇,这是一场他们关于家与生活理念的探索,不断找寻生活的美好与身心愉悦
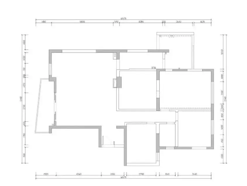
▲ 原始结构图
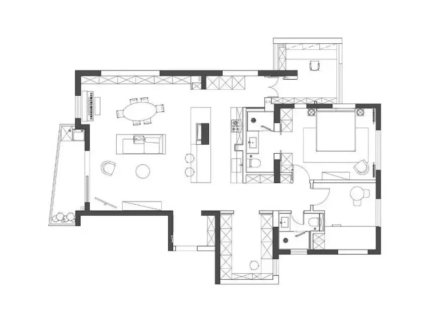
▲ 平面布置图
▲ 风格设计贴合屋主的需求喜好,大面积留白奠定干净简洁的空间格调,奶油色系打底,精致优雅的家具营造出浪漫的轻法式氛围,给人一种岁月静好的惬意感
▲ 客餐一体大横厅布局,低矮的棉花糖沙发居中而置,围合出惬意舒适的休闲厅
▲ 云朵造型的茶几边角不易磕碰,更是家中的颜值担当
▲ 三星画境电视打破传统电视界限,平时还能当作一件艺术品摆在角落
▲ USM边柜靠墙摆放,赋予软装搭配更多的发挥空间,以精美物件装点出独一无二的生活仪式感
▲ 羊羔毛单人沙发时尚百搭
▲ 餐厅位于沙发背后,大理石餐桌搭配胡桃木餐椅,丰富空间质感,上方点缀一盏蚕丝吊灯提升就餐格调,靠窗规划钢琴区
▲ 背景打造整排高柜补充收纳,使用简洁的柜体设计,弱化储物柜的存在,彰显极简魅力
▲ 全开放式的设计让空间功能互相叠加,营造出更舒适的空间尺度和视觉体验
▲ 定制中岛吧台将承重柱包裹其中,与厨房台面平行而置,操作动线舒适便捷
▲ 吧台也可以作为简餐、下午茶或喝酒聊天的地方
▲ 灶台设置在承重柱背后,搭配隐藏式油烟机,保持视线的整洁清爽,收纳柜从餐厅延续至厨房,将冰箱以及蒸烤箱嵌入其中
▲ 将一间卧室改造成独立衣帽间,一门到顶的设计简洁美观,丰富的柜体形式满足不同的储物需求
▲ 加入灯带满足照明和氛围烘托,空间质感更加高级
▲ 靠窗处设置梳妆台,化妆换衣一系列动作便捷高效
▲ 儿童房做上下层设计,高效利用空间,睡眠区与娱乐区兼备,选择符合孩子身高的矮柜,方便孩子自己取放绘本和玩具
▲ 主卧延续整屋基调,大平顶设计清爽大气,奶油色涂料通刷,一进入卧室就让人不由自主的放松下来
▲ 竹节吊灯温馨有格调,布艺窗帘透着柔情光影,慵懒舒适氛围萦绕整个卧室
▲ 口袋门隔断主卫空间,悬空洗漱台居中,两侧分布着马桶区和淋浴区
声明:该文章来源互联网,由乐后屋装企精灵整理发布或转载,如有侵权请及时联系平台客服进行删除,版权归原作者所有,本处仅作为分享使用。
算一算我家装修多少钱? 5秒免费获取装修报价
扫码获取
微信扫描二维码关注

