欢迎您访问乐后屋装企精灵官网!

手机扫码

400-672-2009

【中古风设计案例】91㎡中古质感风,餐岛一体可伸缩,感受光影美学的居家氛围

浏览数:283次

/

发布时间: 2024-06-22


客户需求:91㎡在享受当下二人世界的同时,在计划养育可爱的宝宝;需要一个低饱和度的家,怀旧的质感中带些侘寂风的调调。

设计要点:保留原户型的3房格局,重点聚焦在空间功能的重置和优化;以米咖色艺术漆与深色的木饰面为全房做定调,结合光影氛围的营造,为业主打造轻松舒适的家。


QIANSI

房/屋/信/息

house decoration
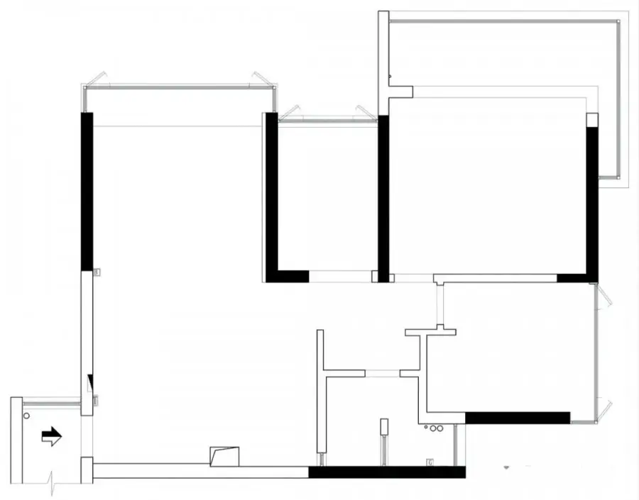
原始户型图

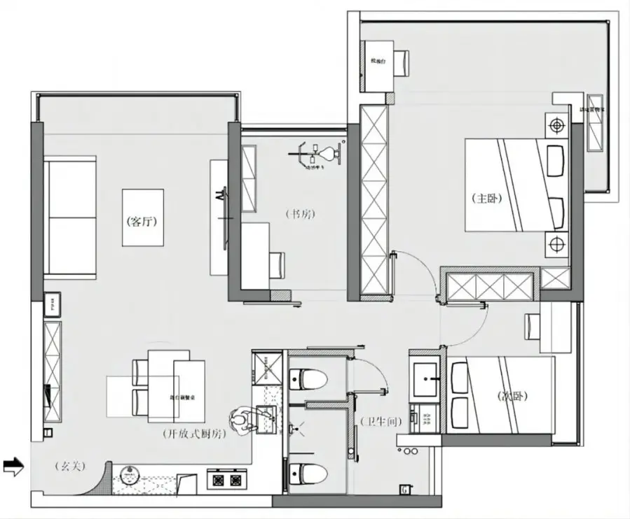
▲平面设计图






玄 关


入户玄关处采用圆弧的隔断墙设计,相比较于传统的方形,圆弧在视觉上具备缓冲的作用,搭配感应灯的设计,归家的氛围感拉满。

一门到顶的鞋柜与简约的入户凳,打造舒适的归家体验感。


客 厅


客厅的无主灯设计在视觉上拉伸了层高,木质的台面设计让飘窗多了一份温润,复古的百叶窗让室内的光影明暗调节自如。


米色的地毯、奶油色的沙发,素色基调的软装搭配让客厅展现出内敛温柔一面,去茶几化的设计,让空间的灵活性更大,席地而坐的居家生活,自由又舒适。

陶罐式样的灯增加居家的氛围感;通过乳胶漆的大片留白,电视背景墙与木地板、地柜相得益彰,层次感满满。


搭配一盆绿植与座椅,一杯咖啡、一次阅读就是一整个休闲惬意的时光。


餐 厨

可伸缩的餐桌与岛台做连接,可以根据就餐人数做灵活的长度拉伸,平常则可以有效节约餐厨的空间。


岛台的侧面采用轨道插座的设计,方便小家电的使用。



向烟道方向延伸出西厨水吧区,蒸烤一体箱的嵌入,也满足了厨房烹饪方式的多样化。


卧 室


灯光作为空间的灵魂所在,主卧则很好地延续了这个基调,台灯与摇臂灯适应卧室多场景的光影氛围需求。



深棕色的木饰面板作为半墙的床头背景设计,与地板的同色系列,折射出空间的统一性,营造沉浸式的睡眠区域。



将生活阳台纳入主卧空间,扩大面积的同时,顺势发挥了梳妆台与阅读角的功能。


书 房


设计师充分发挥空间的灵活性与机动性,书房空间即使办公学习的领域,也可以是临时健身房,根据生活需求,也可以改造成卧室。


怀旧的书房空间,实木书桌、藤编座椅、斗柜书架以及简约的装饰画,搭配灯光的点缀,肉眼可见的精致感。


卫 生 间

挪出次卧的部分空间,扩大洗漱空间的面积,安置洗手台和洗烘套装。


靠厨房一侧设计双马桶与淋浴房,伴随卫生间双一字型布局,应运而生的过道,连通小阳台,成功实现家务动线与采光通风最优的双赢。

声明:该文章来源互联网,由乐后屋装企精灵整理发布或转载,如有侵权请及时联系平台客服进行删除,版权归原作者所有,本处仅作为分享使用。

乐后屋装企精灵官方网站   技术支持 : 乐后屋装企精灵

算一算我家装修多少钱? 5秒免费获取装修报价

扫码获取

预约量房

扫码即可获取

预约设计

扫码即可获取

免费报价

扫码即可获取

预约看工地

扫码即可获取

微信扫描二维码关注

立即打开微信扫一扫