欢迎您访问乐后屋装企精灵官网!

手机扫码

400-672-2009

【现代轻奢风设计案例】152㎡现代轻奢,美又实用,简直和豪宅没区别了~

浏览数:1183次

/

发布时间: 2024-07-06

买房装修,将对家人无形的爱,化作有形的温暖空间。面对自己的新房,还是前所未有的期待。房屋面积152㎡,现代轻奢装修,选择了单纯不复杂的色彩,在优雅杏色中揉入锈蚀感铁灰色,为空间增添一丝复古况味,同时搭配大理石电视墙,增加大气感,整体美又实用,简直和豪宅没区别了。

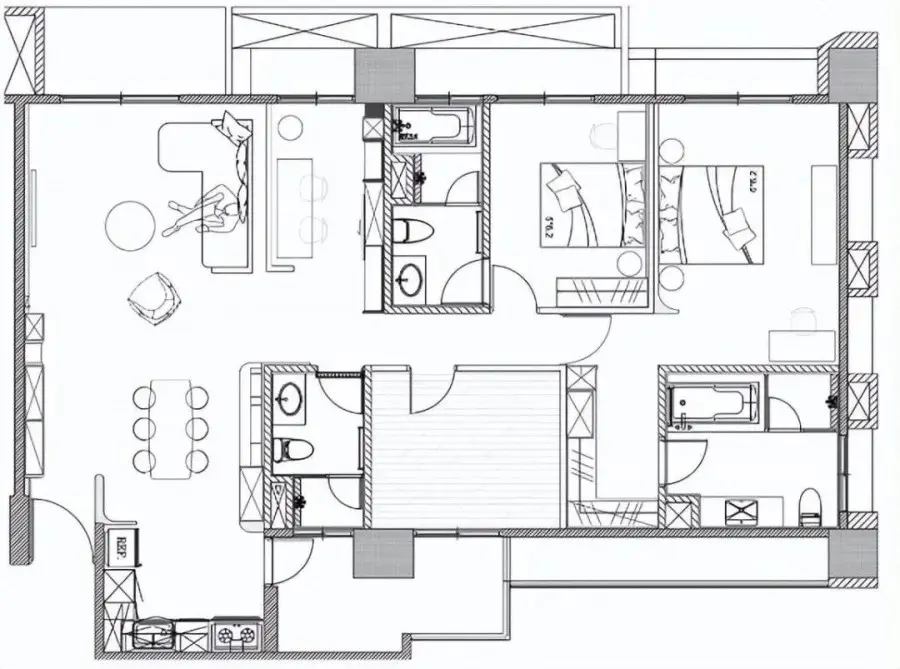
152㎡户型方正,原户型为三房一厅三卫布局。整体格局还是非常不错的,无需进行太大的改动,只需结合生活习惯做一些个性化的设计即可。

改造后的空间布局,最大限度的保留了原有格局。客餐厅以极大化形式呈现,以餐厅作为客厅和厨房的中间地带,减去不必要的隔断,让视线与动线保持无阻流畅感。

玄关

玄关刻意压低了层高,营造进入客厅后的反差效果。原户型没有独立玄关,装修后拉出一道88公分的弧形轻薄隔断,既能提高私密性又可以规避一些风水忌讳。悬空鞋柜设计,以轻盈之姿串接空间,引领回家的动线。

客厅

客厅作为公共空间的核心枢纽,无阻的流畅动线,串起餐厅和书房,让空间更显宽敞。横幅划开柔软的纱帘,连接客厅与书房之间的落地窗,形成一气呵成的窗带效果。

在原有客厅基础上设计了半高隔断,将客厅一分为二,一部分作为客厅,另一部分作为书房,深色木质隔断多了一份沉稳,又让空间不封闭。在典雅舒适的L型沙发一侧,加装了木质平台,作为空间的延伸,相同的色调呼应木质基调的开放式书房。

客厅保持了原始层高,让空间更加敞亮通透。略带浅灰色的耐磨木地板,深浅有致的木纹,让轻奢空间多了温润质感。大理石作为电视墙,亮面光滑质地夹杂流纹挥舞,映现不凡的品味与优雅大气。

餐厅

餐厅设计加入了弧形元素,整体效果更加柔和舒适。餐边柜加入了带有金属锈蚀感美耐板,复古韵味的铁灰色板材在灯光作用下,若隐若现的细致纹路,颇为有趣。餐厅以散发光晕的造型吊灯与LED灯条结合,增添不同韵味的光氛表情。

书房

木作矮墙以开放式的手法,以小小的转折围塑书房,不仅空间不封闭,还可以与其他功能区保持互动。

书柜设计了滑门,可以左右随时移动,书柜背面与餐边柜一样,采用了带有锈蚀感的金属美耐板,增加质感。利用梁的宽度,转化为柜体的深度,弱化梁体的存在,同时又拥有可以摆放书籍和展示装饰品的陈列柜,一举两得。

主卧

主卧沉稳大气有质感,挑选了两种不同材质做拼接,组成床头背景装饰。既有木质的温润,又有壁纸的沉稳,同时赋予了主卧空间的稳定性。天花转角处做了圆弧修饰,视觉柔和较少了直角锐利感。

主卧衣帽间延续了沉稳基调,L型的吊挂区,配合玻璃橱窗和封闭式收纳,让收纳更轻松。带有反射特性的镜面,拉阔出空间感,视觉空间更显宽敞。

次卧

次卧以中性地彩度色调诠释舒适感,床头处铺陈灰韵轻浅流纹壁纸,搭衬绽放光氛的灯条,营造轻松舒缓的休舔氛围。

灵活可控的蜂巢帘设计,可以根据实际情况调节室内光线。床尾选用淡雅的灰色,安排穿孔线路方便安装壁挂电视。

声明:该文章来源互联网,由乐后屋装企精灵整理发布或转载,如有侵权请及时联系平台客服进行删除,版权归原作者所有,本处仅作为分享使用。

乐后屋装企精灵官方网站   技术支持 : 乐后屋装企精灵

算一算我家装修多少钱? 5秒免费获取装修报价

扫码获取

预约量房

扫码即可获取

预约设计

扫码即可获取

免费报价

扫码即可获取

预约看工地

扫码即可获取

微信扫描二维码关注

立即打开微信扫一扫