手机扫码
当前位置:
首页 > 装修常识 > 电视柜设计!把普通房子装成普通人住不起的样子~
浏览数:175次
发布时间: 2024-08-02







组合式电视柜是对传统一字柜的一个创新延伸,它通过结合一字柜与各类其他家具,储物柜及吊柜组合,提供了多样的设计选项,形成一体化的多功能区域。这类电视柜主要呈现为L型或C型,不仅扩充了客厅的储藏空间,还在视觉上保持了电视墙的留白和简洁,增强了空间的通透感。它特别适合中等大小的居住空间。



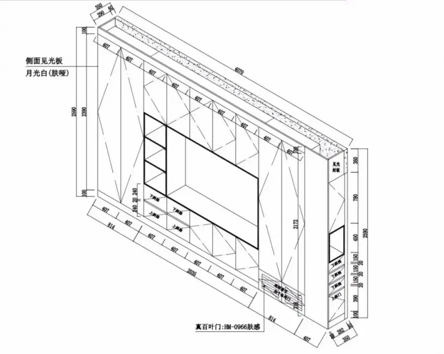
4、整墙式电视柜




通顶电视柜的高度一般在2.4到2.8米,几乎从地面延伸到天花板。这样的设计最大化了储存空间,尤其适合储物需求高的家庭,同时也能在视觉上拉长房间的高度感,使空间显得更为开阔和气派。深度建议保持在30至40厘米。这样的深度足以支撑电视机的底座,并为后面的电线和通风留出适当空间。保持适当的深度不仅有助于维持电视柜的稳固,也使得电视柜后部的维护变得更加容易。电视机四周边距至少要保留5到10厘米的空间,这对于电视的散热和维修非常关键。适当的空间可以帮助电视机热量散发,避免电视及其他电子设备过热,延长设备寿命。



预留电源和设备储放地,以便摆放机顶盒、音响和路由器等影音设备。为了确保足够的电源供应和安全,开放区域的墙面应装设至少3至5个电源插座。同时,为了便于电缆的管理和弯曲,插座应从台面下方至少预留5厘米的空间。

柜门拉手的选择在设计整墙电视柜时,考虑到外观的简洁和现代感,可以选择去掉传统的柜门拉手。采用无拉手设计的电视柜,配合柜门反弹器的应用,不仅能保持柜面的整洁和统一,还能通过轻轻一推即可打开柜门,这样的设计既美观又实用。反弹器的耐用性老雷要提醒下大家,但通过合理的日常使用习惯,如避免柜内物品过于拥挤、减少频繁或粗暴地开关柜门等习惯延长其使用寿命。

声明:该文章来源互联网,由乐后屋装企精灵整理发布或转载,如有侵权请及时联系平台客服进行删除,版权归原作者所有,本处仅作为分享使用。
算一算我家装修多少钱? 5秒免费获取装修报价
扫码获取
微信扫描二维码关注

