欢迎您访问乐后屋装企精灵官网!

手机扫码

400-672-2009

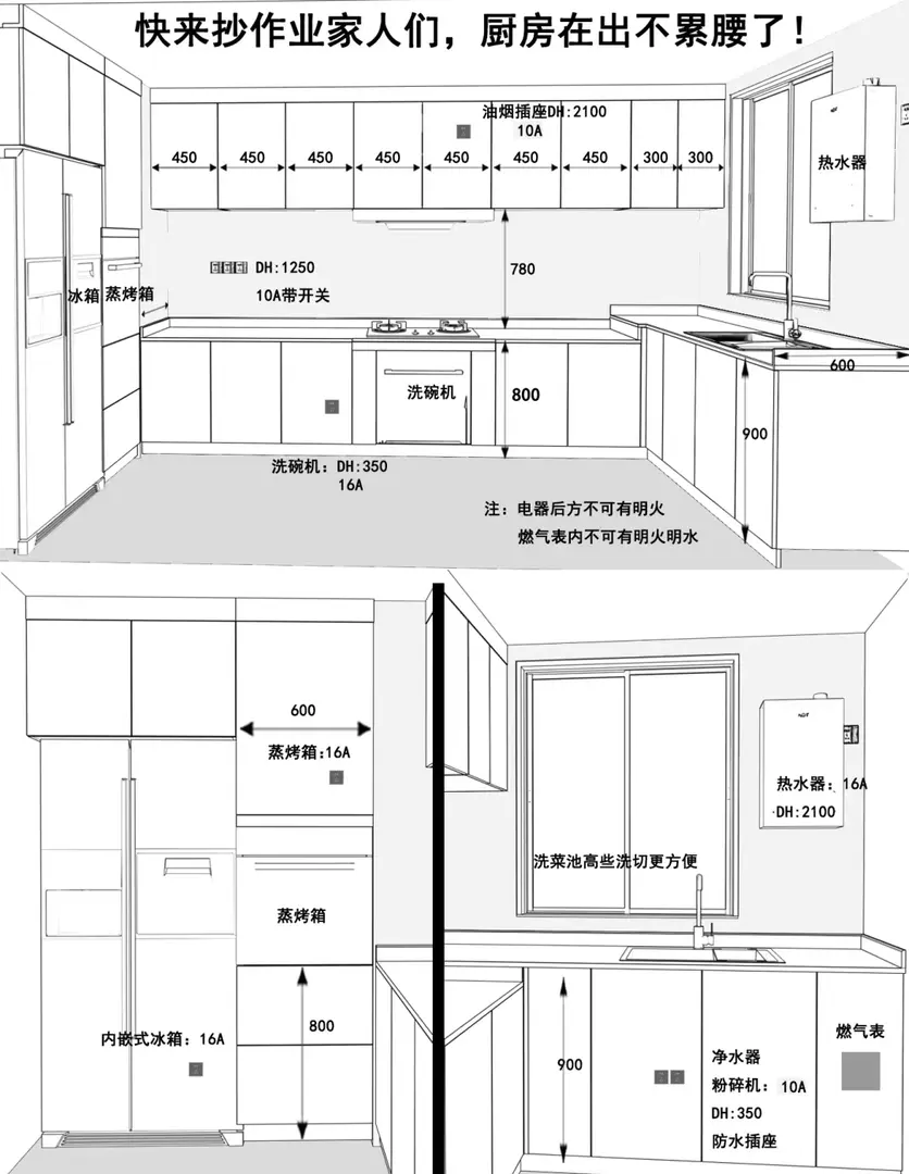
专业都得说绝的厨房布局图~

浏览数:125次

/

发布时间: 2024-08-12



声明:该文章来源互联网,由乐后屋装企精灵整理发布或转载,如有侵权请及时联系平台客服进行删除,版权归原作者所有,本处仅作为分享使用。

乐后屋装企精灵官方网站   技术支持 : 乐后屋装企精灵

算一算我家装修多少钱? 5秒免费获取装修报价

扫码获取

预约量房

扫码即可获取

预约设计

扫码即可获取

免费报价

扫码即可获取

预约看工地

扫码即可获取

微信扫描二维码关注

立即打开微信扫一扫