手机扫码
当前位置:
首页 > 装修常识 > 【奶油风设计案例】60㎡精装改奶油风独居小家,小空间也能绽放出迷人的魅力~
浏览数:246次
发布时间: 2024-08-16
▲ 项目面积60平,精装改造价10万,本案屋主是独居小姐姐,初次见面就与设计师相谈甚欢,顺利地达成了合作共识,独居装修只为取悦自己,考虑更多的是自住的舒适性与幸福感
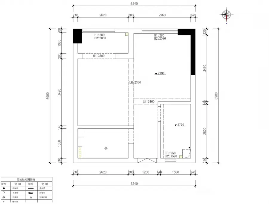
▲ 原始结构图
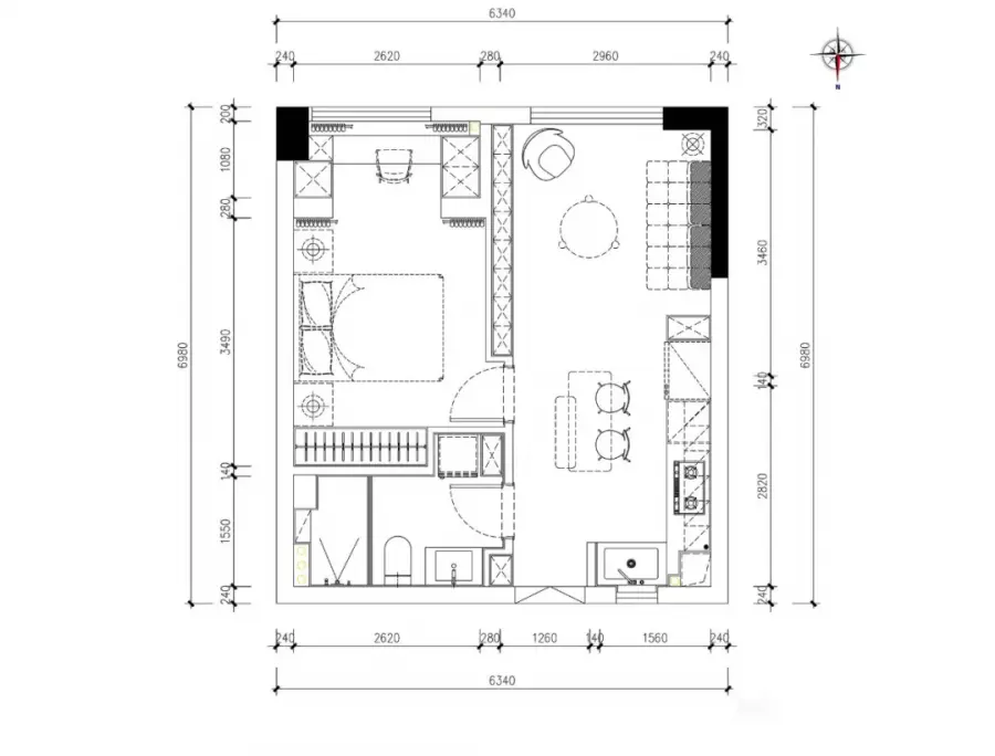
▲ 平面布置图
▲ 进门之后即是餐厨区,改造前的客餐厅区域空间偏小、厨房闭塞,设计餐厨一体将厨房释放出来,开放式的布局带来开阔的视野和采光
▲ 中古餐桌椅搭配素雅桌布,雕花灯盘下点缀一盏南瓜吊灯,把氛围感直接拉满
▲ 餐桌不仅可以用来享受美食,还能作为操作台使用,提高了空间的使用效率
▲ 厨房,浅色的吊柜、墙砖和台面,搭配木色地柜,视觉轻松不显局促
▲ 利用台面下方空间嵌入蒸烤箱、洗碗机
▲ 开放式餐厨区看向客厅视角
▲ 客厅以奶油色与木色作为空间的主要配色,营造出一种温馨而高级的家居氛围
▲ 沙发背景加入石膏线条勾勒简约造型,中间点缀壁灯,颇有些文艺复古范儿
▲ 舒适的云朵沙发床可坐可躺,充满松弛感,杂志架既是装饰又能存放书籍,坐在沙发上伸手就能拿放
▲ 可移动推车置物架是屋主的最爱,逛家具的时候一眼就是它了
▲ 置物架小景
▲ 定制整墙电视柜,合理划分收纳形式,颜值实用两不误
▲ 小摆件、绿植、装饰画,让空间多了一份温馨感
▲ 整个公区视角
▲ 主卧大面积留白显得简洁明快,搭配奶杏色高背床和低饱和度窗帘,起居空间简单舒适即可
▲ 设计衣柜与床头柜一体,同时具备梳妆台功能
▲ 阳台再加一组柜子补充收纳
▲ 床头靠背后还能置物
▲ 卫生间与主卫之间设计S形隔墙,门后空间用来放置洗衣机和烘干机(平面图可见)
声明:该文章来源互联网,由乐后屋装企精灵整理发布或转载,如有侵权请及时联系平台客服进行删除,版权归原作者所有,本处仅作为分享使用。
算一算我家装修多少钱? 5秒免费获取装修报价
扫码获取
微信扫描二维码关注

