手机扫码
当前位置:
首页 > 装修常识 > 【现代轻奢风设计案例】96㎡现代轻奢风,以柔和清新的色调,描绘精致轻奢的空间!
浏览数:401次
发布时间: 2024-08-16
今天三岁分享的案例,是一套现代轻奢风。本案业主是一个三口之家,全家喜欢清新、阳光的现代风格,恰到好处的轻奢给设计增色不少。整体现代风格的空间基调,加入多彩精致的软装装饰,再以华丽优雅的细节点缀,由金色线条镶嵌的空间,给人时尚前卫的气质优雅和温馨舒适的空间感受。希望这套案例能给你带来灵感。
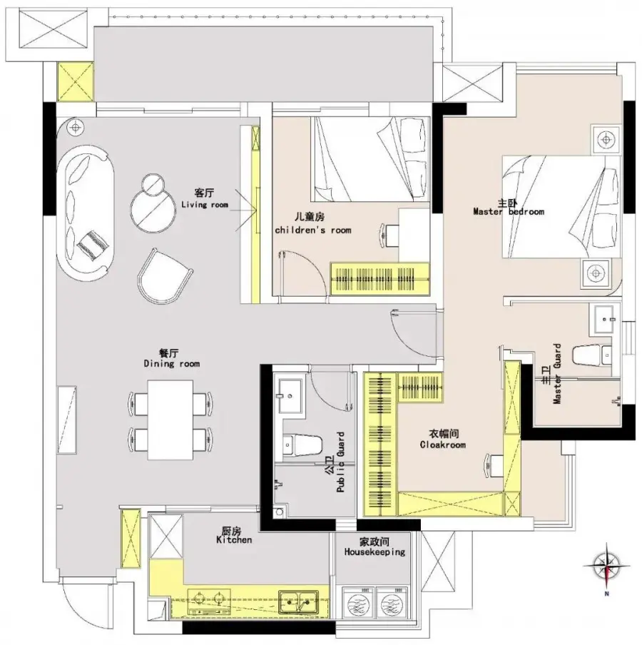
1、入户即为客餐厅一体布局,竖厅结构动线更为流畅
2、阳台连接客厅与儿童房,增强空间互动交流
3、主卧打通做一体化套房设计,衣帽间+独立卫浴一应俱全,功能强大。
餐厅,入户抛釉灰地砖铺贴延伸,空间墙面及顶面多运用金属线条勾勒描绘,呼应轻奢格调,一侧布置餐边柜兼做端景台。
布置黑白石材餐桌,搭配脏粉色+墨绿色丝绒餐椅,造型别致的吊灯做点缀, 奶油色背景墙装饰立体感墙饰,提升就餐格调。
客餐厅开放式设计,一体式吊顶边角做弧形处理, 入户视野宽敞明亮。
客厅,以灰白色奠定色彩基调,打造空间独有的高级质感。金属元素的加入,使整体呈现出轻奢的调性,落地窗为空间带来明亮的光线。
布置米白色弧体沙发,多样色彩抱枕点缀,背景墙运用大量线条进行装饰,搭配粉色丝绒的单椅,增加客厅温暖感的同时又不失优雅。
金属质感底座+斑马纹路的茶几,打造悬空石材电视墙,中间内凹预留电视位,一侧打造开放式展示架,底部黑色石材地台装饰。
阳台,一片绿意映入眼帘,摆置一把休闲软椅,三角边几置于一旁,午后或傍晚坐在这读书品茗,感受大自然的清新与自由。
厨房,采用浅灰色大理石花纹砖铺地,白色系橱柜简洁清爽,局部黑色线条增加层次感,无拉手设计外观上做到了去繁入简,整洁大气。
次卫,整体铺设暖灰色的大理石墙地砖,同色系浴室柜搭配加长镜柜,玻璃移门分隔干湿区,细节处融入金属质感,实现空间扩容。
儿童房,灰色饰面的空间,搭配甜美的粉色床品,衣柜延伸出书桌兼床头柜,开放格设计充当书架,打造优雅浅致的卧室空间。
主卧,整体以浅色调为主基调,吊顶延续客厅设计,床头转角设计弧形过渡,金属线条勾勒出轻奢质感,营造出轻高级的体验感。
打通利用次卧空间,巧妙打造步入式衣帽间,木色+灰色作为空间的主色调,四周定制通顶茶色玻璃柜门,内部安装灯带,增加收纳空间。
靠窗规划梳妆区域,格栅线条背景增加层次感,抽屉式木质衣柜+玻璃柜门,方便衣物拿放,在视觉和光线上保留了很好的空间感。
主卫,墙地面通铺白色石纹砖,悬空浴室柜搭配墙排马桶,不留卫生死角,独特的水晶台盆+精致的吊灯,展现出生活层次与个性品味。
声明:该文章来源互联网,由乐后屋装企精灵整理发布或转载,如有侵权请及时联系平台客服进行删除,版权归原作者所有,本处仅作为分享使用。
算一算我家装修多少钱? 5秒免费获取装修报价
扫码获取
微信扫描二维码关注

