手机扫码
当前位置:
首页 > 装修常识 > 110㎡法式复古田园风~浪漫的人有自己的乌托邦~
浏览数:483次
发布时间: 2024-12-11
相信有很多人已经提前了解到我们这个案例啦,两厅三房的浪漫优雅的法式复古田园风~由原本的传统三房改成了主卧书房和衣帽间,两人住简直是生活幸福感爆棚!
本案例融合了田园温馨与法国优雅,强调自然与舒适的结合,使用经典的法式元素,繁复的装饰图案和柔和的色调,以及自然材料的家具。置身于法式田园风格的室内,每一处细节都透露出对大自然的深深热爱。这不只是一种装饰手法,它是对生活的一种态度,将田园的宁静与法式的优雅完美融合。
01
玄关
PORCH
精心挑选的柜门的颜色的巧妙搭配,既显得简约大方,又不失活泼灵动。这样的设计,不仅增强了空间的立体感,还增添了隐私感第一眼看不到客厅,也让居住者在生活动线上感受到一份别样的乐趣。
02
客厅
A LiIVING ROOM
设计师巧妙地运用精美的线条和图案进行装饰,既展现了艺术的美感,又增添了空间的层次感。每一笔每一划都透露着设计师对细节的极致追求,让整面墙成为客厅的一大亮点。有一个独特的壁炉设计,它不仅为客厅增添了一份复古的韵味,更是成为了家中的一处温暖角落。是配合整体氛围感既温馨舒适又精致优雅。
03
餐厅
RESTAURANT
厨房以浅绿色和白色为主色调,这两种色彩搭配在一起加上大理石,既显得清新雅致,又不失家的温暖。木质地板的加入与瓷砖衔接,区分客餐厅,更是为整个空间增添了一份自然的韵味和舒适的触感。
04
书房
STUDY
精致的法式PU线条搭配简约吊灯,加上舒适的家具布局以及个性化的装饰细节无论是想要放松身心的休闲时刻,还是需要专注工作和学习的时间,这里都能为你提供一个完美的环境。
05
主卧
MASTER BEDROOM
主卧色调不仅让空间显得更为宽敞明亮,还带来了一丝宁静与放松。搭配了复古的PU线条,既突出了空间的层次感,又增添了一份雅致与格调。推拉门隔绝主卧与书房,透明磨砂玻璃让阳光透进来,显得主卧明亮通透为居住者打造了一个温馨舒适、自然雅致的休憩空间。
06
衣帽间
CLOAKROOM
利用上进门左手边300厚的沉重墙,用来做健身衣物,瑜伽器材的收纳,其余左右两面墙做了一面到顶的衣柜,满足居住者的收纳需求,奶油雪糕的配色搭配简单的线条,勾勒出法式的浪漫气氛。对开经典玻璃造型门,更是增加优雅的氛围感~
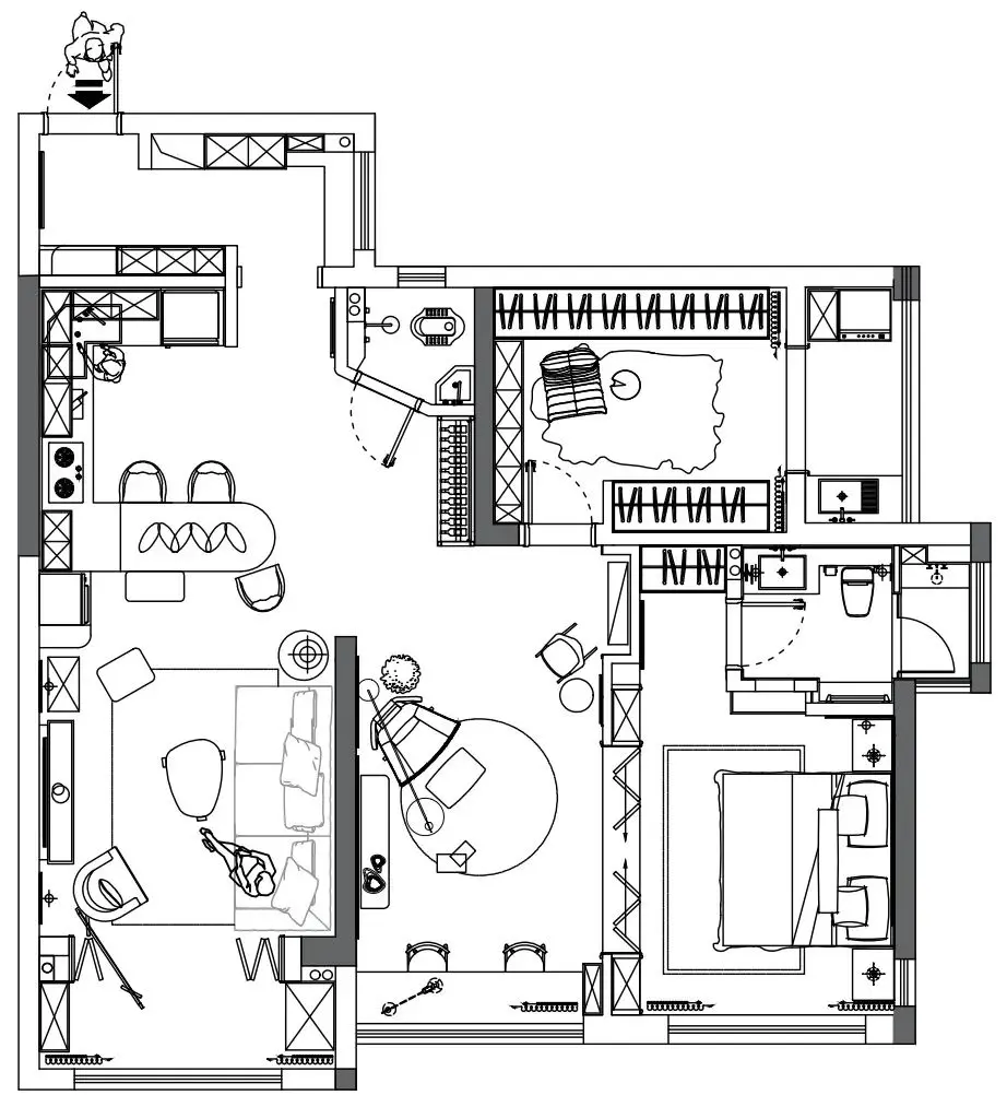
—
平面方案
HOUSE TYPE STRUCTURE
声明:该文章来源互联网,由乐后屋装企精灵整理发布或转载,如有侵权请及时联系平台客服进行删除,版权归原作者所有,本处仅作为分享使用。
算一算我家装修多少钱? 5秒免费获取装修报价
扫码获取
微信扫描二维码关注

