手机扫码
当前位置:
首页 > 装修常识 > 150㎡奶油风照着抄,绝对惊艳到邻居!
浏览数:444次
发布时间: 2024-12-13

在这个快节奏的都市生活中,我们都渴望有一个温馨舒适的家来放松身心。今天要分享的装修完工案例,150㎡的面积,让每一寸空间都散发着温暖的氛围。
一对90后的新婚夫妇,这是一场他们关于家与生活理念的探索,不断找寻生活的美好与身心愉悦。

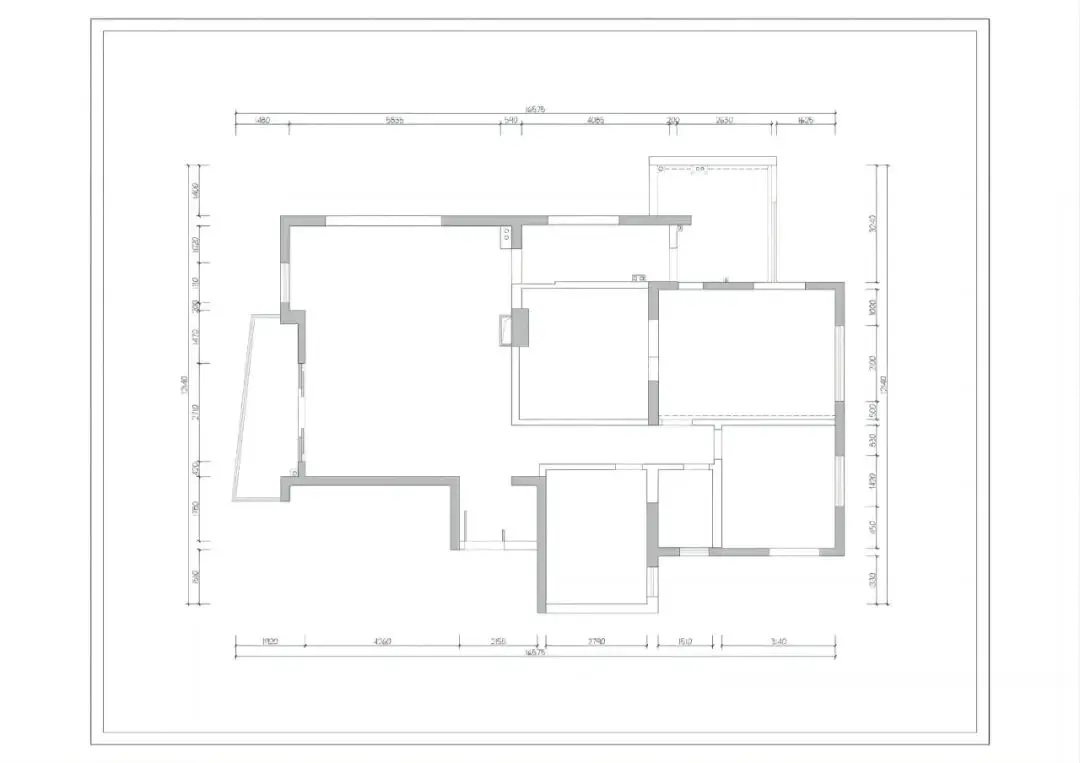
房/屋/信/息

▲原始户型图

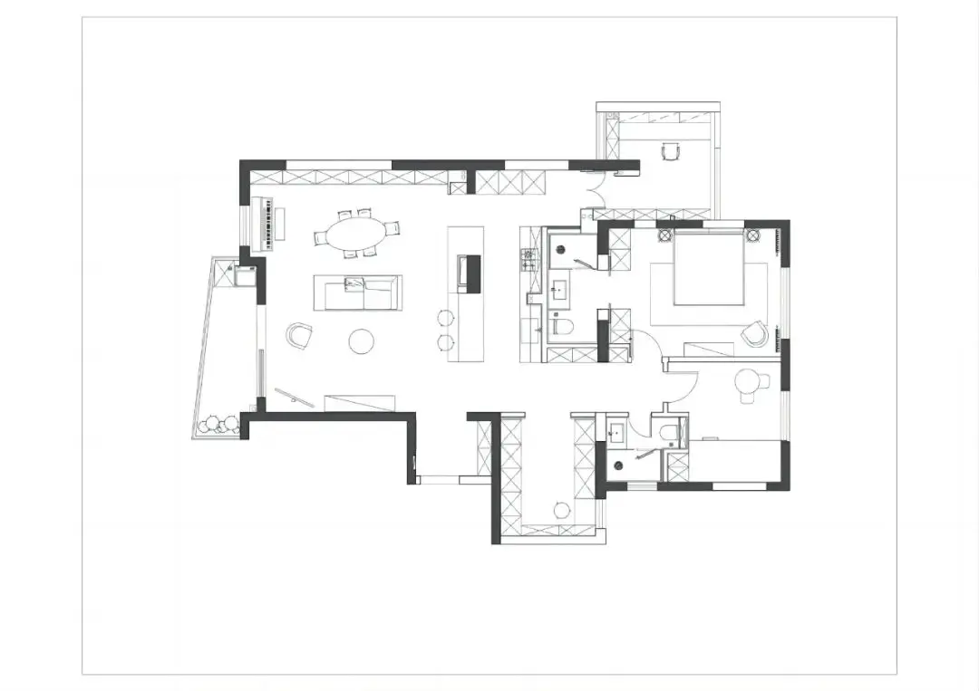
▲平面设计图


基于奶油风调性,设计师大面积留白的处理让整个空间干净简洁,奶油色系打底,精致优雅的家具营造出浪漫的居家氛围,给人一种岁月静好的惬意感。


画境电视打破传统电视界限,满足业主日常观影需求的同时,平时还能当作一件艺术品摆在角落。
USM边柜靠墙摆放,赋予软装搭配更多的发挥空间,以精美物件装点出独一无二的生活仪式感。

云朵造型的茶几边角不易磕碰,更是家中的颜值担当。

全开放式的设计让空间功能互相叠加,营造出更舒适的空间尺度和视觉体验。



根据原始户型结构,将就餐区域放置在沙发背后。胡桃椅子搭配大理石岩板材质的餐桌,让整个空间质感满满,精致的网红吊灯提升了就餐区域的格调。
一门到顶的满墙定制柜与整个装修风格完美契合,使用简洁的柜体设计,弱化储物柜的存在,彰显极简魅力。

定制吧台与厨房台面平行而置,将承重柱包裹在里面,兼顾颜值与实用性,整个操作动线舒适便捷,既可以作为就餐区,也可以作为茶饮、喝酒的好地方。


卧 室


上下层设计的儿童房,充分利用每一寸空间,睡眠区与娱乐区兼备,选择符合孩子身高的矮柜,方便孩子自己取放绘本和玩具。


将一间卧室改造成独立衣帽间,一门到顶的设计简洁美观,丰富的柜体形式满足不同的储物需求。
加入灯带满足照明和氛围烘托,空间质感更加高级,靠窗处设置梳妆台,化妆换衣一系列动作便捷高效。
声明:该文章来源互联网,由乐后屋装企精灵整理发布或转载,如有侵权请及时联系平台客服进行删除,版权归原作者所有,本处仅作为分享使用。
算一算我家装修多少钱? 5秒免费获取装修报价
扫码获取
微信扫描二维码关注

